Building Summary

Data last updated on: 4/2/2026     Ownership current as of: 3/30/2026     Tax Year: 2026
REID 200157

PIN # 0834-22-7293

Location Address Property Description
508 WEEPING WILLOW DR SUMMER MDW SGL FMLY/PH:03 /LT#275 PL:000162-000344
   
Property Owner Owner's Mailing Address
LEONARD, JORDAN;HORNE, JESSICA
508 WEEPING WILLOW DR
DURHAM NC 27704
Parcel
Buildings
Misc Improvements
Land
Deeds
Notes
Sales
Photos
Map
Building Location Address
508 WEEPING WILLOW DR
Building Description
RESFR-RES-FRM-OR-EQ
Card   of  1
Bldg Type RESIDENTIAL
Units 1
Living Area (SQFT) 1776
Number of Stories 2.00
Style CON-CONVENTIONAL
Foundation 03-CONTINOUS-SLAB
Exterior 08-VINYL/ALUMINUM
Const Type
Heating 06-HEAT-PUMP
Air Cond
Plumbing Baths (Full):   2
Baths (Half):   1
Extra Fixtures:   0
Total Plumbing Fixtures:   8 
Bedrooms 4
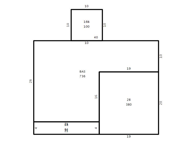
Main Body (SQFT) 736
Year Built 2006
Additions 5
Effective Year 2006
Remodeled 0
Interior Adj.
Other Features
Building Total & Improvement Details

Grade C 100%
Percentage Complete 100
Total Adjusted Replacement Cost New $309,465
Physical Depreciation (% Bad) 0%
Depreciated Value $266,140
Economic Depreciation (% Bad) 0%
Functional Depreciation (% Bad) 0%
Total Depreciated Value $266,140
Market Area Factor 1.00
Building Value $266,140
Misc Improvements Value
Total Improvement Value $266,140

Assessed Land Value $71,875
   
Assessed Total Value $338,015



Addition Summary 
StoryTypeCodeArea
1.00 Concrete Slab 16B 100
1.00 Covered Porch 18 84
1.00 Garage 28 380
1.00 Res Frame 2Nd Flr FR02 736
1.00 Res Frm 2Nd Flr Over Garg FR02 304
 
Other Improvements 
 


Building Sketch
Photograph
Building Sketch Building Photo
(Click sketch for bigger image)




Copyright © 2022 Durham County, North Carolina.