Building Summary

Data last updated on: 3/13/2026     Ownership current as of: 3/9/2026     Tax Year: 2026
REID 200972

PIN # 0852-60-7658

Location Address Property Description
1038 STATLER DR RIDGEWOOD/RIDGEFIELD/PH:0 8A/LT#118 PL:000165-000082
   
Property Owner Owner's Mailing Address
MORALES, EDGAR DANIEL MARTINEZ
1038 STATLER DR
DURHAM NC 27703
Parcel
Buildings
Misc Improvements
Land
Deeds
Notes
Sales
Photos
Map
Building Location Address
1038 STATLER DR
Building Description
RESFR-RES-FRM-OR-EQ
Card   of  1
Bldg Type RESIDENTIAL
Units 1
Living Area (SQFT) 1584
Number of Stories 2.00
Style CON-CONVENTIONAL
Foundation 03-CONTINOUS-SLAB
Exterior 08-VINYL/ALUMINUM
Const Type
Heating 05-PACKAGE-HEAT/COOL
Air Cond
Plumbing Baths (Full):   2
Baths (Half):   1
Extra Fixtures:   0
Total Plumbing Fixtures:   8 
Bedrooms 4
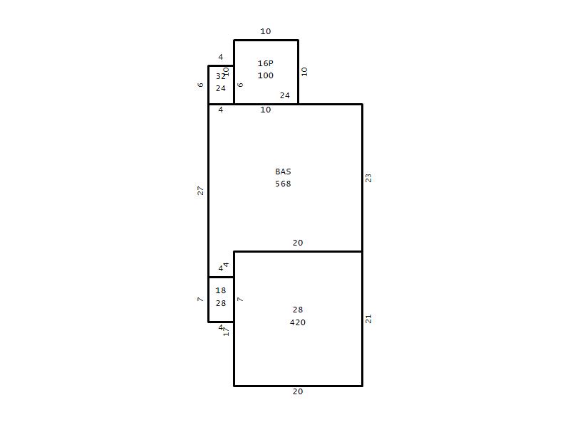
Main Body (SQFT) 568
Year Built 2006
Additions 6
Effective Year 2006
Remodeled 0
Interior Adj.
Other Features
Building Total & Improvement Details

Grade C+ 110%
Percentage Complete 100
Total Adjusted Replacement Cost New $314,189
Physical Depreciation (% Bad) 0%
Depreciated Value $254,493
Economic Depreciation (% Bad) 0%
Functional Depreciation (% Bad) 0%
Total Depreciated Value $254,493
Market Area Factor 1.00
Building Value $254,493
Misc Improvements Value
Total Improvement Value $254,493

Assessed Land Value $70,000
   
Assessed Total Value $324,493



Addition Summary 
StoryTypeCodeArea
1.00 Patio 16P 100
1.00 Covered Porch 18 28
1.00 Garage 28 420
1.00 Storage Utility 32 24
1.00 Res Frame 2Nd Flr FR02 596
1.00 Res Frm 2Nd Flr Over Garg FR02 420
 
Other Improvements 
 


Building Sketch
Photograph
Building Sketch Building Photo
(Click sketch for bigger image)




Copyright © 2022 Durham County, North Carolina.