Building Summary

Data last updated on: 3/13/2026     Ownership current as of: 3/9/2026     Tax Year: 2026
REID 201024

PIN # 0852-51-9363

Location Address Property Description
512 MAGNA DR RIDGEWOOD/RIDGEFIELD/PH:0 8B/LT#203 PL:000165-000073
   
Property Owner Owner's Mailing Address
VALAKUZHY, KIERAN
512 MAGNA DR
DURHAM NC 27703
Parcel
Buildings
Misc Improvements
Land
Deeds
Notes
Sales
Photos
Map
Building Location Address
512 MAGNA DR
Building Description
RESFR-RES-FRM-OR-EQ
Card   of  1
Bldg Type RESIDENTIAL
Units 1
Living Area (SQFT) 2201
Number of Stories 2.00
Style CON-CONVENTIONAL
Foundation 03-CONTINOUS-SLAB
Exterior 08-VINYL/ALUMINUM
Const Type
Heating 05-PACKAGE-HEAT/COOL
Air Cond
Plumbing Baths (Full):   2
Baths (Half):   1
Extra Fixtures:   0
Total Plumbing Fixtures:   8 
Bedrooms 3
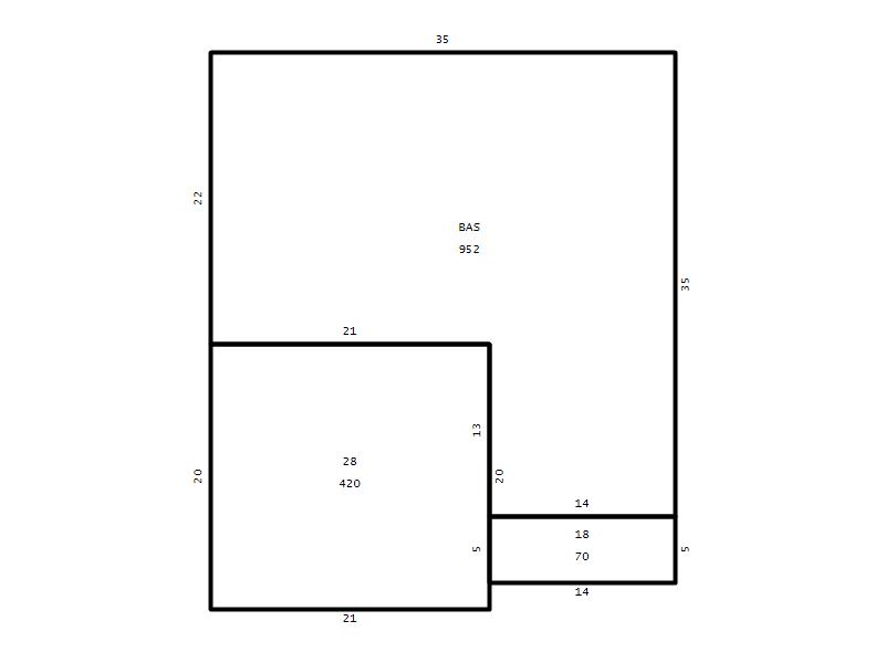
Main Body (SQFT) 952
Year Built 2005
Additions 4
Effective Year 2005
Remodeled 0
Interior Adj.
Other Features
Building Total & Improvement Details

Grade C+ 110%
Percentage Complete 100
Total Adjusted Replacement Cost New $395,565
Physical Depreciation (% Bad) 0%
Depreciated Value $320,408
Economic Depreciation (% Bad) 0%
Functional Depreciation (% Bad) 0%
Total Depreciated Value $320,408
Market Area Factor 1.00
Building Value $320,408
Misc Improvements Value
Total Improvement Value $320,408

Assessed Land Value $71,875
   
Assessed Total Value $392,283



Addition Summary 
StoryTypeCodeArea
1.00 Covered Porch 18 70
1.00 Garage 28 420
1.00 Res Frame 2Nd Flr FR02 966
1.00 Res Frm 2Nd Flr Over Garg FR02 283
 
Other Improvements 
 


Building Sketch
Photograph
Building Sketch Building Photo
(Click sketch for bigger image)




Copyright © 2022 Durham County, North Carolina.