Building Summary

Data last updated on: 3/13/2026     Ownership current as of: 3/9/2026     Tax Year: 2026
REID 201040

PIN # 0852-50-6860

Location Address Property Description
409 MAGNA DR RIDGEWOOD/RIDGEFIELD/PH:0 8B/LT#159 PL:000165-000076
   
Property Owner Owner's Mailing Address
OPENDOOR PROPERTY TRUST I
1295 W WASHINGTON ST STE 115
TEMPE AZ 85288
Parcel
Buildings
Misc Improvements
Land
Deeds
Notes
Sales
Photos
Map
Building Location Address
409 MAGNA DR
Building Description
RESFR-RES-FRM-OR-EQ
Card   of  1
Bldg Type RESIDENTIAL
Units 1
Living Area (SQFT) 1640
Number of Stories 2.00
Style CON-CONVENTIONAL
Foundation 03-CONTINOUS-SLAB
Exterior 08-VINYL/ALUMINUM
Const Type
Heating 05-PACKAGE-HEAT/COOL
Air Cond
Plumbing Baths (Full):   2
Baths (Half):   1
Extra Fixtures:   0
Total Plumbing Fixtures:   8 
Bedrooms 3
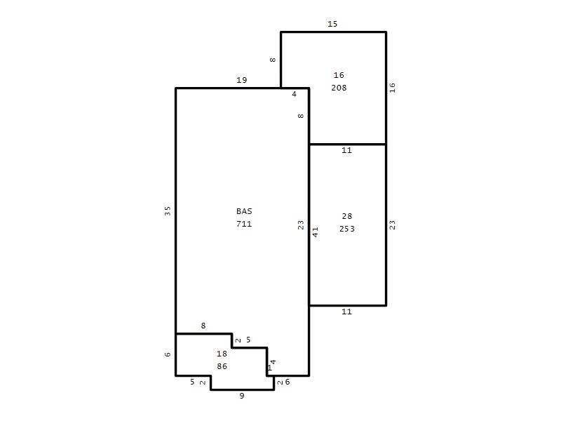
Main Body (SQFT) 711
Year Built 2006
Additions 5
Effective Year 2006
Remodeled 0
Interior Adj.
Other Features
Building Total & Improvement Details

Grade C+ 110%
Percentage Complete 100
Total Adjusted Replacement Cost New $318,724
Physical Depreciation (% Bad) 0%
Depreciated Value $258,166
Economic Depreciation (% Bad) 0%
Functional Depreciation (% Bad) 0%
Total Depreciated Value $258,166
Market Area Factor 1.00
Building Value $258,166
Misc Improvements Value
Total Improvement Value $258,166

Assessed Land Value $70,000
   
Assessed Total Value $328,166



Addition Summary 
StoryTypeCodeArea
1.00 Frame Deck 16 208
1.00 Covered Porch 18 86
1.00 Garage 28 253
1.00 Res Frame 2Nd Flr FR02 725
1.00 Res Frm 2Nd Flr Over Garg FR02 204
 
Other Improvements 
 


Building Sketch
Photograph
Building Sketch Building Photo
(Click sketch for bigger image)




Copyright © 2022 Durham County, North Carolina.