Building Summary

Data last updated on: 3/13/2026     Ownership current as of: 3/9/2026     Tax Year: 2026
REID 201050

PIN # 0852-51-8018

Location Address Property Description
418 MAGNA DR RIDGEWOOD/RIDGEFIELD/PH:0 8B/LT#228 PL:000165-000076
   
Property Owner Owner's Mailing Address
GARCIA, FREDY;NEWKIRK, HANNAH NICOLE
418 MAGNA DR
DURHAM NC 27703
Parcel
Buildings
Misc Improvements
Land
Deeds
Notes
Sales
Photos
Map
Building Location Address
418 MAGNA DR
Building Description
RESFR-RES-FRM-OR-EQ
Card   of  1
Bldg Type RESIDENTIAL
Units 1
Living Area (SQFT) 2177
Number of Stories 2.00
Style CON-CONVENTIONAL
Foundation 03-CONTINOUS-SLAB
Exterior 08-VINYL/ALUMINUM
Const Type
Heating 05-PACKAGE-HEAT/COOL
Air Cond
Plumbing Baths (Full):   2
Baths (Half):   1
Extra Fixtures:   0
Total Plumbing Fixtures:   8 
Bedrooms 4
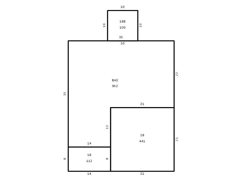
Main Body (SQFT) 952
Year Built 2006
Additions 5
Effective Year 2006
Remodeled 0
Interior Adj.
Other Features
Building Total & Improvement Details

Grade C+ 110%
Percentage Complete 100
Total Adjusted Replacement Cost New $397,233
Physical Depreciation (% Bad) 0%
Depreciated Value $321,759
Economic Depreciation (% Bad) 0%
Functional Depreciation (% Bad) 0%
Total Depreciated Value $321,759
Market Area Factor 1.00
Building Value $321,759
Misc Improvements Value
Total Improvement Value $321,759

Assessed Land Value $70,625
   
Assessed Total Value $392,384



Addition Summary 
StoryTypeCodeArea
1.00 Concrete Slab 16B 100
1.00 Covered Porch 18 112
1.00 Garage 28 441
1.00 Res Frame 2Nd Flr FR02 952
1.00 Res Frm 2Nd Flr Over Garg FR02 273
 
Other Improvements 
 


Building Sketch
Photograph
Building Sketch Building Photo
(Click sketch for bigger image)




Copyright © 2022 Durham County, North Carolina.