Building Summary

Data last updated on: 4/2/2026     Ownership current as of: 3/30/2026     Tax Year: 2026
REID 201120

PIN # 0840-61-3697

Location Address Property Description
1437 BUNGALOW AVE LAUREL GLEN/PH:03/LT#13 PL:000164-000028
   
Property Owner Owner's Mailing Address
ALSPACH BRIAN;SMITH, LEAH
1437 BUNGALOW AVE
DURHAM NC 27703
Parcel
Buildings
Misc Improvements
Land
Deeds
Notes
Sales
Photos
Map
Building Location Address
1437 BUNGALOW AVE
Building Description
RESFR-RES-FRM-OR-EQ
Card   of  1
Bldg Type RESIDENTIAL
Units 1
Living Area (SQFT) 1708
Number of Stories 2.00
Style CON-CONVENTIONAL
Foundation 04-P-FOOTING/CRWL-SP
Exterior 08-VINYL/ALUMINUM
Const Type
Heating 05-PACKAGE-HEAT/COOL
Air Cond
Plumbing Baths (Full):   2
Baths (Half):   1
Extra Fixtures:   0
Total Plumbing Fixtures:   8 
Bedrooms 3
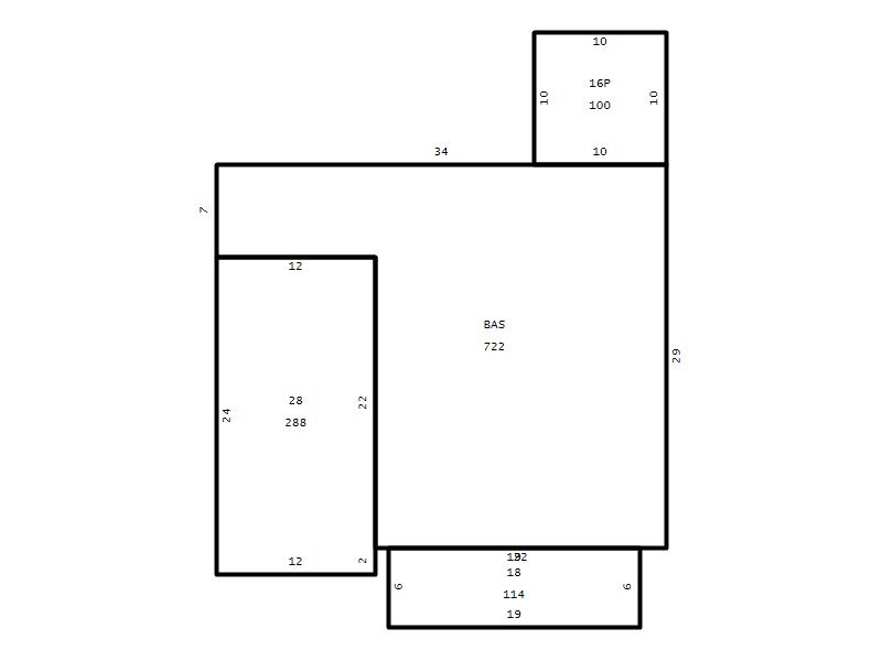
Main Body (SQFT) 722
Year Built 2015
Additions 5
Effective Year 2015
Remodeled 0
Interior Adj.
Other Features
Building Total & Improvement Details

Grade B 120%
Percentage Complete 100
Total Adjusted Replacement Cost New $374,172
Physical Depreciation (% Bad) 0%
Depreciated Value $355,463
Economic Depreciation (% Bad) 0%
Functional Depreciation (% Bad) 0%
Total Depreciated Value $355,463
Market Area Factor 1.00
Building Value $355,463
Misc Improvements Value
Total Improvement Value $355,463

Assessed Land Value $130,375
   
Assessed Total Value $485,838



Addition Summary 
StoryTypeCodeArea
1.00 Patio 16P 100
1.00 Covered Porch 18 114
1.00 Garage 28 288
1.00 Res Frame 2Nd Flr FR02 722
1.00 Res Frm 2Nd Flr Over Garg FR02 264
 
Other Improvements 
 


Building Sketch
Photograph
Building Sketch Building Photo
(Click sketch for bigger image)




Copyright © 2022 Durham County, North Carolina.