Building Summary

Data last updated on: 4/2/2026     Ownership current as of: 3/30/2026     Tax Year: 2026
REID 201124

PIN # 0840-62-4098

Location Address Property Description
6 FEATHERGLEN CT LAUREL GLEN/PH:03/LT#17 PL:000164-000028
   
Property Owner Owner's Mailing Address
R ADAM WILLIAMS TRUSTEE;LAYLA B WILLIAMS TRUSTEE;LAYLA AND ADAM WILLIAMS LIVING TRUST
6 FEATHERGLEN CT
DURHAM NC 27703
Parcel
Buildings
Misc Improvements
Land
Deeds
Notes
Sales
Photos
Map
Building Location Address
6 FEATHERGLEN CT
Building Description
RESFR-RES-FRM-OR-EQ
Card   of  1
Bldg Type RESIDENTIAL
Units 1
Living Area (SQFT) 2229
Number of Stories 2.00
Style CON-CONVENTIONAL
Foundation 04-P-FOOTING/CRWL-SP
Exterior 08-VINYL/ALUMINUM
Const Type
Heating 05-PACKAGE-HEAT/COOL
Air Cond
Plumbing Baths (Full):   2
Baths (Half):   1
Extra Fixtures:   0
Total Plumbing Fixtures:   8 
Bedrooms 4
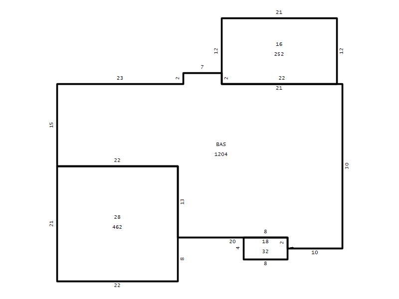
Main Body (SQFT) 1204
Year Built 2005
Additions 4
Effective Year 2005
Remodeled 0
Interior Adj.
Other Features
Building Total & Improvement Details

Grade B 120%
Percentage Complete 100
Total Adjusted Replacement Cost New $456,846
Physical Depreciation (% Bad) 0%
Depreciated Value $370,045
Economic Depreciation (% Bad) 0%
Functional Depreciation (% Bad) 0%
Total Depreciated Value $370,045
Market Area Factor 1.00
Building Value $370,045
Misc Improvements Value
Total Improvement Value $370,045

Assessed Land Value $123,375
   
Assessed Total Value $493,420



Addition Summary 
StoryTypeCodeArea
1.00 Frame Deck 16 252
1.00 Covered Porch 18 32
1.00 Garage 28 462
1.00 Res Frame 2Nd Flr FR02 1025
 
Other Improvements 
 


Building Sketch
Photograph
Building Sketch Building Photo
(Click sketch for bigger image)




Copyright © 2022 Durham County, North Carolina.