Building Summary

Data last updated on: 4/2/2026     Ownership current as of: 3/30/2026     Tax Year: 2026
REID 201140

PIN # 0840-61-1520

Location Address Property Description
1446 BUNGALOW AVE LAUREL GLEN/PH:03/LT#33 PL:000164-000028
   
Property Owner Owner's Mailing Address
SANTIAGOCUEVAS, AURELIO
1446 BUNGALOW AVE
DURHAM NC 27703
Parcel
Buildings
Misc Improvements
Land
Deeds
Notes
Sales
Photos
Map
Building Location Address
1446 BUNGALOW AVE
Building Description
RESFR-RES-FRM-OR-EQ
Card   of  1
Bldg Type RESIDENTIAL
Units 1
Living Area (SQFT) 1878
Number of Stories 2.00
Style CAP-CAPE-COD
Foundation 04-P-FOOTING/CRWL-SP
Exterior 08-VINYL/ALUMINUM
Const Type
Heating 05-PACKAGE-HEAT/COOL
Air Cond
Plumbing Baths (Full):   2
Baths (Half):   1
Extra Fixtures:   0
Total Plumbing Fixtures:   8 
Bedrooms 3
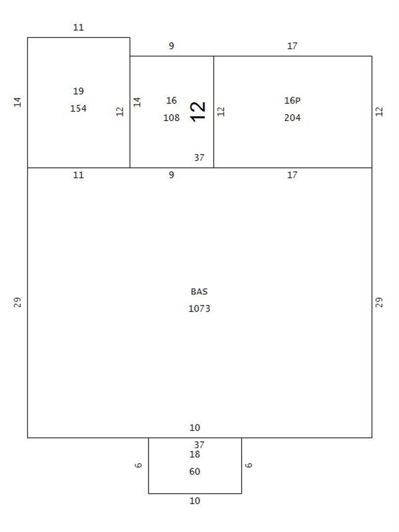
Main Body (SQFT) 1073
Year Built 2006
Additions 5
Effective Year 2006
Remodeled 0
Interior Adj.
Other Features
Building Total & Improvement Details

Grade B-10 110%
Percentage Complete 100
Total Adjusted Replacement Cost New $353,277
Physical Depreciation (% Bad) 0%
Depreciated Value $321,482
Economic Depreciation (% Bad) 0%
Functional Depreciation (% Bad) 0%
Total Depreciated Value $321,482
Market Area Factor 1.00
Building Value $321,482
Misc Improvements Value $324
Total Improvement Value $321,806

Assessed Land Value $123,375
   
Assessed Total Value $445,181



Addition Summary 
StoryTypeCodeArea
1.00 Patio 16P 204
1.00 Covered Porch 18 60
1.00 Frame Deck 16 108
1.00 Screen Porch 19 154
1.00 Res Frame 2Nd Flr FR02 805
 
Other Improvements 
UnitsDescriptionItemCodeYear% BadValue
11x13 DIMENSIONS Shed (Open Pole) 2006 75 324
 


Building Sketch
Photograph
Building Sketch Building Photo
(Click sketch for bigger image)




Copyright © 2022 Durham County, North Carolina.