Building Summary

Data last updated on: 3/31/2026     Ownership current as of: 3/26/2026     Tax Year: 2026
REID 201422

PIN # 0851-17-7153

Location Address Property Description
908 OBSIDIAN WAY STONEHILL ESTATES/PH:01/L T#27 PL:000164-000100
   
Property Owner Owner's Mailing Address
SFR, XII NM RALEIGH OWNER 1 L P
PO BOX 4900`
SCOTTSDALE AZ 85261
Parcel
Buildings
Misc Improvements
Land
Deeds
Notes
Sales
Photos
Map
Building Location Address
908 OBSIDIAN WAY
Building Description
RESFR-RES-FRM-OR-EQ
Card   of  1
Bldg Type RESIDENTIAL
Units 1
Living Area (SQFT) 1670
Number of Stories 2.00
Style CON-CONVENTIONAL
Foundation 03-CONTINOUS-SLAB
Exterior 08-VINYL/ALUMINUM
Const Type
Heating 05-PACKAGE-HEAT/COOL
Air Cond
Plumbing Baths (Full):   2
Baths (Half):   1
Extra Fixtures:   0
Total Plumbing Fixtures:   8 
Bedrooms 3
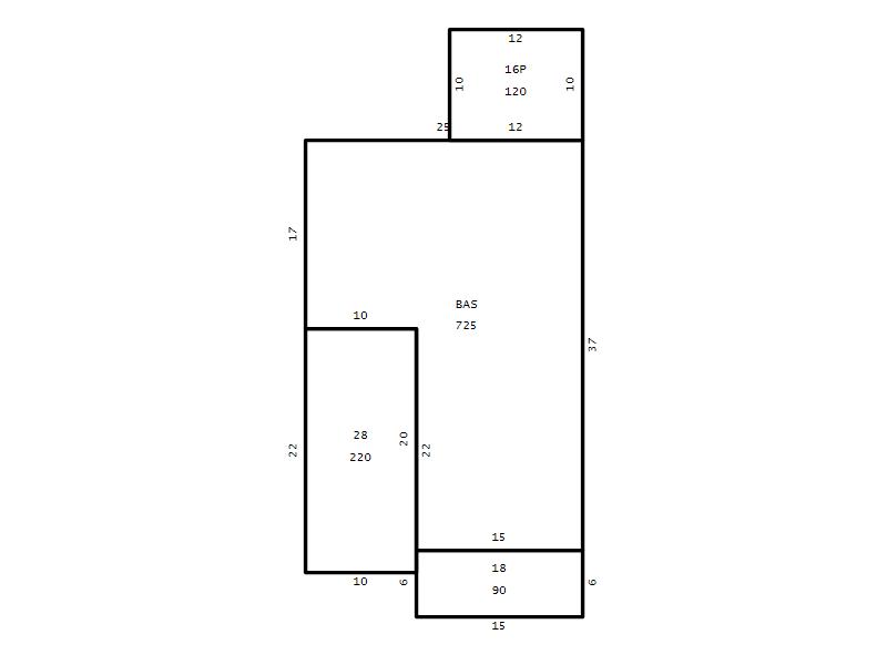
Main Body (SQFT) 725
Year Built 2005
Additions 5
Effective Year 2005
Remodeled 0
Interior Adj.
Other Features
Building Total & Improvement Details

Grade C+5 105%
Percentage Complete 100
Total Adjusted Replacement Cost New $308,799
Physical Depreciation (% Bad) 0%
Depreciated Value $250,127
Economic Depreciation (% Bad) 0%
Functional Depreciation (% Bad) 0%
Total Depreciated Value $250,127
Market Area Factor 1.00
Building Value $250,127
Misc Improvements Value
Total Improvement Value $250,127

Assessed Land Value $107,100
   
Assessed Total Value $357,227



Addition Summary 
StoryTypeCodeArea
1.00 Patio 16P 120
1.00 Covered Porch 18 90
1.00 Garage 28 220
1.00 Res Frm 2Nd Flr Over Garg FR02 220
1.00 Res Frame 2Nd Flr FR02 725
 
Other Improvements 
 


Building Sketch
Photograph
Building Sketch Building Photo
(Click sketch for bigger image)




Copyright © 2022 Durham County, North Carolina.