Building Summary

Data last updated on: 4/2/2026     Ownership current as of: 3/30/2026     Tax Year: 2026
REID 201443

PIN # 0851-17-5080

Location Address Property Description
905 OBSIDIAN WAY STONEHILL ESTATES/PH:01/L T#46 PL:000164-000100
   
Property Owner Owner's Mailing Address
STAR BORROWER SFR6 LP
16220 N SCOTTSDALE RD STE 450
SCOTTSDALE AZ 85254
Parcel
Buildings
Misc Improvements
Land
Deeds
Notes
Sales
Photos
Map
Building Location Address
905 OBSIDIAN WAY
Building Description
RESFR-RES-FRM-OR-EQ
Card   of  1
Bldg Type RESIDENTIAL
Units 1
Living Area (SQFT) 1676
Number of Stories 2.00
Style CON-CONVENTIONAL
Foundation 03-CONTINOUS-SLAB
Exterior 08-VINYL/ALUMINUM
Const Type
Heating 05-PACKAGE-HEAT/COOL
Air Cond
Plumbing Baths (Full):   2
Baths (Half):   1
Extra Fixtures:   0
Total Plumbing Fixtures:   8 
Bedrooms 3
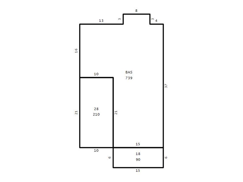
Main Body (SQFT) 739
Year Built 2006
Additions 4
Effective Year 2006
Remodeled 0
Interior Adj.
Other Features
Building Total & Improvement Details

Grade C+10 110%
Percentage Complete 100
Total Adjusted Replacement Cost New $314,837
Physical Depreciation (% Bad) 0%
Depreciated Value $255,018
Economic Depreciation (% Bad) 0%
Functional Depreciation (% Bad) 0%
Total Depreciated Value $255,018
Market Area Factor 1.00
Building Value $255,018
Misc Improvements Value
Total Improvement Value $255,018

Assessed Land Value $110,700
   
Assessed Total Value $365,718



Addition Summary 
StoryTypeCodeArea
1.00 Covered Porch 18 90
1.00 Garage 28 210
1.00 Res Frm 2Nd Flr Over Garg FR02 210
1.00 Res Frame 2Nd Flr FR02 727
 
Other Improvements 
 


Building Sketch
Photograph
Building Sketch Building Photo
(Click sketch for bigger image)




Copyright © 2022 Durham County, North Carolina.