Building Summary

Data last updated on: 3/31/2026     Ownership current as of: 3/26/2026     Tax Year: 2026
REID 201457

PIN # 0851-16-8982

Location Address Property Description
3605 TURQUOISE DR STONEHILL ESTATES/PH:01/L T#23 PL:000164-000103
   
Property Owner Owner's Mailing Address
MORENO, TOMAS ANTONIO;CONTRERAS, MIRIAN YESENIA ESCOBAR
3605 TURQUOISE DR
DURHAM NC 27703
Parcel
Buildings
Misc Improvements
Land
Deeds
Notes
Sales
Photos
Map
Building Location Address
3605 TURQUOISE DR
Building Description
RESFR-RES-FRM-OR-EQ
Card   of  1
Bldg Type RESIDENTIAL
Units 1
Living Area (SQFT) 1738
Number of Stories 2.00
Style CON-CONVENTIONAL
Foundation 03-CONTINOUS-SLAB
Exterior 08-VINYL/ALUMINUM
Const Type
Heating 05-PACKAGE-HEAT/COOL
Air Cond
Plumbing Baths (Full):   2
Baths (Half):   1
Extra Fixtures:   0
Total Plumbing Fixtures:   8 
Bedrooms 3
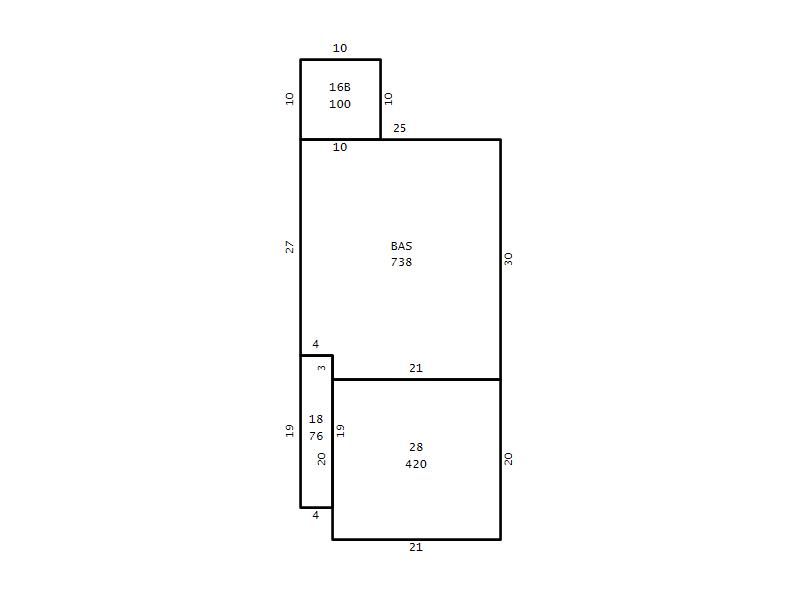
Main Body (SQFT) 738
Year Built 2005
Additions 5
Effective Year 2005
Remodeled 0
Interior Adj.
Other Features
Building Total & Improvement Details

Grade C+10 110%
Percentage Complete 100
Total Adjusted Replacement Cost New $341,281
Physical Depreciation (% Bad) 0%
Depreciated Value $276,438
Economic Depreciation (% Bad) 0%
Functional Depreciation (% Bad) 0%
Total Depreciated Value $276,438
Market Area Factor 1.00
Building Value $276,438
Misc Improvements Value $510
Total Improvement Value $276,948

Assessed Land Value $110,700
   
Assessed Total Value $387,648



Addition Summary 
StoryTypeCodeArea
1.00 Concrete Slab 16B 100
1.00 Covered Porch 18 76
1.00 Garage 28 420
1.00 Res Frame 2Nd Flr FR02 790
1.00 Res Frm 2Nd Flr Over Garg FR02 210
 
Other Improvements 
UnitsDescriptionItemCodeYear% BadValue
8x10 DIMENSIONS Storage Building 2005 75 510
 


Building Sketch
Photograph
Building Sketch Building Photo
(Click sketch for bigger image)




Copyright © 2022 Durham County, North Carolina.