Building Summary

Data last updated on: 4/3/2026     Ownership current as of: 3/30/2026     Tax Year: 2026
REID 110234

PIN # 0831-18-6128

Location Address Property Description
501 MALLARD AVE PROP-PRATT W MANGUM/LT#15 CLEVELAND-HOLLOWAY/HD PL:00005A-000003
   
Property Owner Owner's Mailing Address
AJAVA LLC
PO DRAWER 10
CAMDEN SC 29021
Parcel
Buildings
Misc Improvements
Land
Deeds
Notes
Sales
Photos
Map
Building Location Address
501 MALLARD AVE
Building Description
RESFR-RES-FRM-OR-EQ
Card   of  1
Bldg Type RESIDENTIAL
Units 1
Living Area (SQFT) 2196
Number of Stories 2.00
Style CAP-CAPE-COD
Foundation 04-P-FOOTING/CRWL-SP
Exterior 09-HARD-B/CEMENTBRD
Const Type
Heating 05-PACKAGE-HEAT/COOL
Air Cond
Plumbing Baths (Full):   3
Baths (Half):   0
Extra Fixtures:   0
Total Plumbing Fixtures:   9 
Bedrooms 3
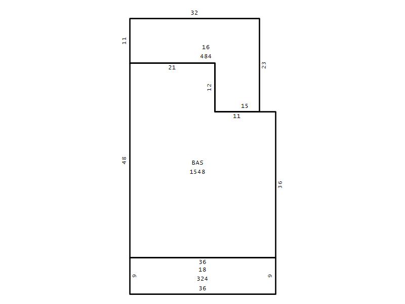
Main Body (SQFT) 1548
Year Built 1930
Additions 3
Effective Year 1930
Remodeled 0
Interior Adj.
Other Features
Building Total & Improvement Details

Grade A-10 155%
Percentage Complete 100
Total Adjusted Replacement Cost New $570,345
Physical Depreciation (% Bad) 0%
Depreciated Value $484,793
Economic Depreciation (% Bad) 0%
Functional Depreciation (% Bad) 0%
Total Depreciated Value $484,793
Market Area Factor 1.00
Building Value $484,793
Misc Improvements Value
Total Improvement Value $484,793

Assessed Land Value $204,750
   
Assessed Total Value $689,543



Addition Summary 
StoryTypeCodeArea
1.00 Frame Deck 16 484
1.00 Covered Porch 18 324
1.00 Res Frame 2Nd Flr FR02 648
 
Other Improvements 
 


Building Sketch
Photograph
Building Sketch Building Photo
(Click sketch for bigger image)




Copyright © 2022 Durham County, North Carolina.