Building Summary

Data last updated on: 3/31/2026     Ownership current as of: 3/26/2026     Tax Year: 2026
REID 202065

PIN # 0843-77-7417

Location Address Property Description
4027 LADY SLIPPER LN GLENNSTONE/PH:03/LT#130 PL:000166-000361
   
Property Owner Owner's Mailing Address
SFR, XII NM RALEIGH OWNER 1 L P
PO BOX 4900`
SCOTTSDALE AZ 85261
Parcel
Buildings
Misc Improvements
Land
Deeds
Notes
Sales
Photos
Map
Building Location Address
4027 LADY SLIPPER LN
Building Description
RESFR-RES-FRM-OR-EQ
Card   of  1
Bldg Type RESIDENTIAL
Units 1
Living Area (SQFT) 2372
Number of Stories 2.00
Style CON-CONVENTIONAL
Foundation 03-CONTINOUS-SLAB
Exterior 08-VINYL/ALUMINUM
Const Type
Heating 05-PACKAGE-HEAT/COOL
Air Cond
Plumbing Baths (Full):   2
Baths (Half):   1
Extra Fixtures:   0
Total Plumbing Fixtures:   8 
Bedrooms 5
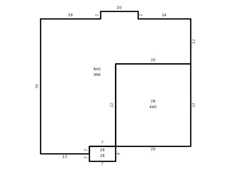
Main Body (SQFT) 966
Year Built 2010
Additions 4
Effective Year 2010
Remodeled 0
Interior Adj.
Other Features
Building Total & Improvement Details

Grade C 100%
Percentage Complete 100
Total Adjusted Replacement Cost New $375,047
Physical Depreciation (% Bad) 0%
Depreciated Value $318,790
Economic Depreciation (% Bad) 0%
Functional Depreciation (% Bad) 0%
Total Depreciated Value $318,790
Market Area Factor 1.00
Building Value $318,790
Misc Improvements Value $1,744
Total Improvement Value $320,534

Assessed Land Value $72,500
   
Assessed Total Value $393,034



Addition Summary 
StoryTypeCodeArea
1.00 Covered Porch 18 28
1.00 Garage 28 440
1.00 Res Frame 2Nd Flr FR02 966
1.00 Res Frm 2Nd Flr Over Garg FR02 440
 
Other Improvements 
UnitsDescriptionItemCodeYear% BadValue
10x12 DIMENSIONS Patio 2010 25 1744
 


Building Sketch
Photograph
Building Sketch Building Photo
(Click sketch for bigger image)




Copyright © 2022 Durham County, North Carolina.