Building Summary

Data last updated on: 4/1/2026     Ownership current as of: 3/27/2026     Tax Year: 2026
REID 202068

PIN # 0843-77-8579

Location Address Property Description
4222 AMBER STONE WAY GLENNSTONE/PH:03/LT#178 PL:000166-000358
   
Property Owner Owner's Mailing Address
KREITLER, CAVAN
4222 AMBER STONE WAY
DURHAM NC 27704
Parcel
Buildings
Misc Improvements
Land
Deeds
Notes
Sales
Photos
Map
Building Location Address
4222 AMBER STONE WAY
Building Description
RESFR-RES-FRM-OR-EQ
Card   of  1
Bldg Type RESIDENTIAL
Units 1
Living Area (SQFT) 1374
Number of Stories 2.00
Style CON-CONVENTIONAL
Foundation 03-CONTINOUS-SLAB
Exterior 08-VINYL/ALUMINUM
Const Type
Heating 05-PACKAGE-HEAT/COOL
Air Cond
Plumbing Baths (Full):   2
Baths (Half):   1
Extra Fixtures:   0
Total Plumbing Fixtures:   8 
Bedrooms 3
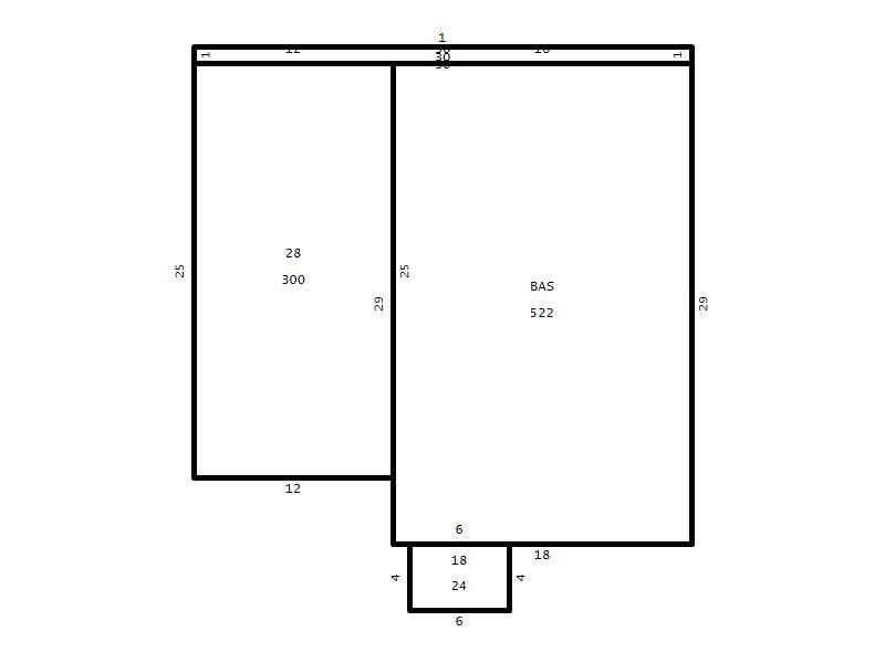
Main Body (SQFT) 522
Year Built 2010
Additions 5
Effective Year 2010
Remodeled 0
Interior Adj.
Other Features
Building Total & Improvement Details

Grade C+ 110%
Percentage Complete 100
Total Adjusted Replacement Cost New $279,497
Physical Depreciation (% Bad) 0%
Depreciated Value $237,572
Economic Depreciation (% Bad) 0%
Functional Depreciation (% Bad) 0%
Total Depreciated Value $237,572
Market Area Factor 1.00
Building Value $237,572
Misc Improvements Value
Total Improvement Value $237,572

Assessed Land Value $71,250
   
Assessed Total Value $308,822



Addition Summary 
StoryTypeCodeArea
1.00 Overhang 01 30
1.00 Covered Porch 18 24
1.00 Garage 28 300
1.00 Res Frame 2Nd Flr FR02 522
1.00 Res Frm 2Nd Flr Over Garg FR02 300
 
Other Improvements 
 


Building Sketch
Photograph
Building Sketch Building Photo
(Click sketch for bigger image)




Copyright © 2022 Durham County, North Carolina.