Building Summary

Data last updated on: 4/1/2026     Ownership current as of: 3/27/2026     Tax Year: 2026
REID 202075

PIN # 0843-87-2711

Location Address Property Description
4236 AMBER STONE WAY GLENNSTONE/PH:03/LT#185 PL:000166-000358
   
Property Owner Owner's Mailing Address
HASTINGS, RYAN
4236 AMBER STONE WAY
DURHAM NC 27704
Parcel
Buildings
Misc Improvements
Land
Deeds
Notes
Sales
Photos
Map
Building Location Address
4236 AMBER STONE WAY
Building Description
RESFR-RES-FRM-OR-EQ
Card   of  1
Bldg Type RESIDENTIAL
Units 1
Living Area (SQFT) 1716
Number of Stories 2.00
Style CON-CONVENTIONAL
Foundation 03-CONTINOUS-SLAB
Exterior 08-VINYL/ALUMINUM
Const Type
Heating 06-HEAT-PUMP
Air Cond
Plumbing Baths (Full):   2
Baths (Half):   1
Extra Fixtures:   0
Total Plumbing Fixtures:   8 
Bedrooms 4
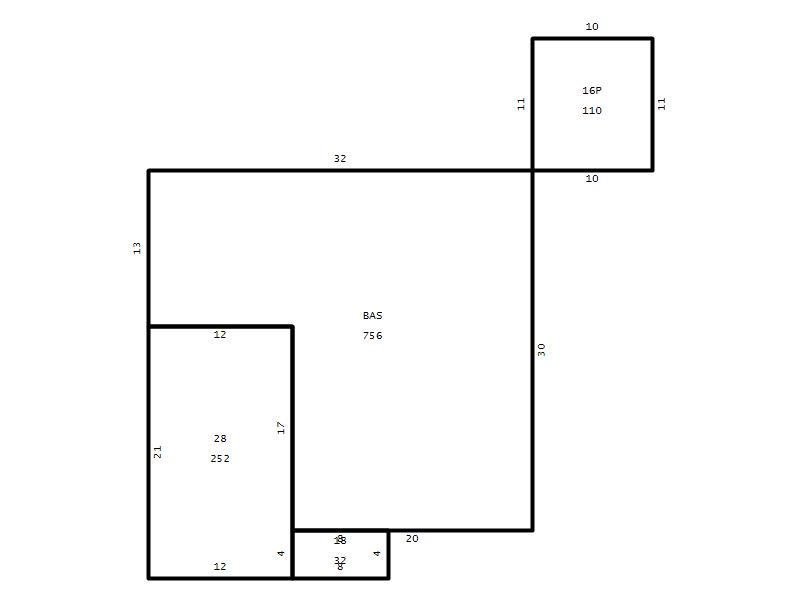
Main Body (SQFT) 756
Year Built 2005
Additions 5
Effective Year 2005
Remodeled 0
Interior Adj.
Other Features
Building Total & Improvement Details

Grade C+ 110%
Percentage Complete 100
Total Adjusted Replacement Cost New $324,460
Physical Depreciation (% Bad) 0%
Depreciated Value $262,813
Economic Depreciation (% Bad) 0%
Functional Depreciation (% Bad) 0%
Total Depreciated Value $262,813
Market Area Factor 1.00
Building Value $262,813
Misc Improvements Value
Total Improvement Value $262,813

Assessed Land Value $71,875
   
Assessed Total Value $334,688



Addition Summary 
StoryTypeCodeArea
1.00 Patio 16P 110
1.00 Covered Porch 18 32
1.00 Garage 28 252
1.00 Res Frame 2Nd Flr FR02 756
1.00 Res Frm 2Nd Flr Over Garg FR02 204
 
Other Improvements 
 


Building Sketch
Photograph
Building Sketch Building Photo
(Click sketch for bigger image)




Copyright © 2022 Durham County, North Carolina.