Building Summary

Data last updated on: 4/2/2026     Ownership current as of: 3/30/2026     Tax Year: 2026
REID 202079

PIN # 0843-87-3923

Location Address Property Description
4244 AMBER STONE WAY GLENNSTONE/PH:03/LT#188 PL:000166-000358
   
Property Owner Owner's Mailing Address
SFR, XII NM RALEIGH OWNER 1 L P
PO BOX 4900`
SCOTTSDALE AZ 85261
Parcel
Buildings
Misc Improvements
Land
Deeds
Notes
Sales
Photos
Map
Building Location Address
4244 AMBER STONE WAY
Building Description
RESFR-RES-FRM-OR-EQ
Card   of  1
Bldg Type RESIDENTIAL
Units 1
Living Area (SQFT) 2018
Number of Stories 2.00
Style CON-CONVENTIONAL
Foundation 03-CONTINOUS-SLAB
Exterior 08-VINYL/ALUMINUM
Const Type
Heating 05-PACKAGE-HEAT/COOL
Air Cond
Plumbing Baths (Full):   2
Baths (Half):   1
Extra Fixtures:   0
Total Plumbing Fixtures:   8 
Bedrooms 3
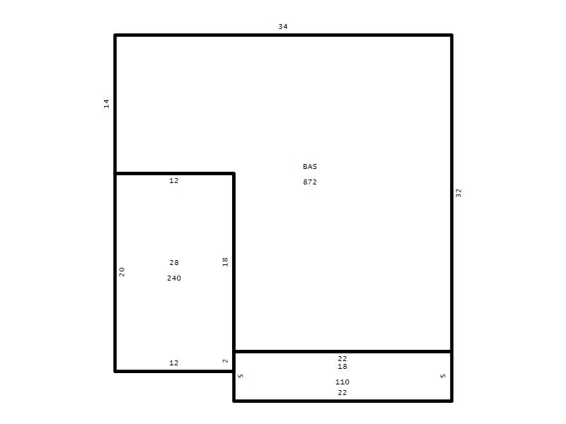
Main Body (SQFT) 872
Year Built 2015
Additions 4
Effective Year 2015
Remodeled 0
Interior Adj.
Other Features
Building Total & Improvement Details

Grade C+ 110%
Percentage Complete 100
Total Adjusted Replacement Cost New $367,104
Physical Depreciation (% Bad) 0%
Depreciated Value $330,394
Economic Depreciation (% Bad) 0%
Functional Depreciation (% Bad) 0%
Total Depreciated Value $330,394
Market Area Factor 1.00
Building Value $330,394
Misc Improvements Value $839
Total Improvement Value $331,233

Assessed Land Value $71,250
   
Assessed Total Value $402,483



Addition Summary 
StoryTypeCodeArea
1.00 Covered Porch 18 110
1.00 Garage 28 240
1.00 Res Frame 2Nd Flr FR02 906
1.00 Res Frm 2Nd Flr Over Garg FR02 240
 
Other Improvements 
UnitsDescriptionItemCodeYear% BadValue
8x12 DIMENSIONS Storage Building 2012 65 839
 


Building Sketch
Photograph
Building Sketch Building Photo
(Click sketch for bigger image)




Copyright © 2022 Durham County, North Carolina.