Building Summary

Data last updated on: 4/2/2026     Ownership current as of: 3/30/2026     Tax Year: 2026
REID 202119

PIN # 0843-77-3560

Location Address Property Description
4014 LADY SLIPPER LN GLENNSTONE/PH:03/LT#078 PL:000166-000361
   
Property Owner Owner's Mailing Address
BAF ASSETS 3 LLC
3903 S CONGRESS AVE STE 40298
AUSTIN TX 78704
Parcel
Buildings
Misc Improvements
Land
Deeds
Notes
Sales
Photos
Map
Building Location Address
4014 LADY SLIPPER LN
Building Description
RESFR-RES-FRM-OR-EQ
Card   of  1
Bldg Type RESIDENTIAL
Units 1
Living Area (SQFT) 1781
Number of Stories 2.00
Style CON-CONVENTIONAL
Foundation 03-CONTINOUS-SLAB
Exterior 08-VINYL/ALUMINUM
Const Type
Heating 05-PACKAGE-HEAT/COOL
Air Cond
Plumbing Baths (Full):   2
Baths (Half):   1
Extra Fixtures:   0
Total Plumbing Fixtures:   8 
Bedrooms 3
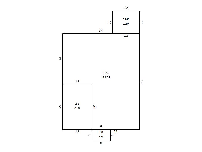
Main Body (SQFT) 1168
Year Built 2011
Additions 5
Effective Year 2011
Remodeled 0
Interior Adj.
Other Features
Building Total & Improvement Details

Grade C+ 110%
Percentage Complete 100
Total Adjusted Replacement Cost New $331,354
Physical Depreciation (% Bad) 0%
Depreciated Value $284,964
Economic Depreciation (% Bad) 0%
Functional Depreciation (% Bad) 0%
Total Depreciated Value $284,964
Market Area Factor 1.00
Building Value $284,964
Misc Improvements Value $9,251
Total Improvement Value $294,215

Assessed Land Value $71,875
   
Assessed Total Value $366,090



Addition Summary 
StoryTypeCodeArea
1.00 Patio 16P 120
1.00 Covered Porch 18 40
1.00 Garage 28 260
1.00 Res Frame 2Nd Flr FR02 353
1.00 Res Frm 2Nd Flr Over Garg FR02 260
 
Other Improvements 
UnitsDescriptionItemCodeYear% BadValue
10x20 DIMENSIONS Swimming Pool/Fiberglass 2016 50 9251
 


Building Sketch
Photograph
Building Sketch Building Photo
(Click sketch for bigger image)




Copyright © 2022 Durham County, North Carolina.