Building Summary

Data last updated on: 4/1/2026     Ownership current as of: 3/27/2026     Tax Year: 2026
REID 202133

PIN # 0843-77-4676

Location Address Property Description
4009 LADY SLIPPER LN GLENNSTONE/PH:03/LT#136 PL:000166-000361
   
Property Owner Owner's Mailing Address
WARD, JAMES
4009 LADY SLIPPER LN
DURHAM NC 27704
Parcel
Buildings
Misc Improvements
Land
Deeds
Notes
Sales
Photos
Map
Building Location Address
4009 LADY SLIPPER LN
Building Description
RESFR-RES-FRM-OR-EQ
Card   of  1
Bldg Type RESIDENTIAL
Units 1
Living Area (SQFT) 1836
Number of Stories 2.00
Style CON-CONVENTIONAL
Foundation 03-CONTINOUS-SLAB
Exterior 08-VINYL/ALUMINUM
Const Type
Heating 05-PACKAGE-HEAT/COOL
Air Cond
Plumbing Baths (Full):   2
Baths (Half):   1
Extra Fixtures:   0
Total Plumbing Fixtures:   8 
Bedrooms 3
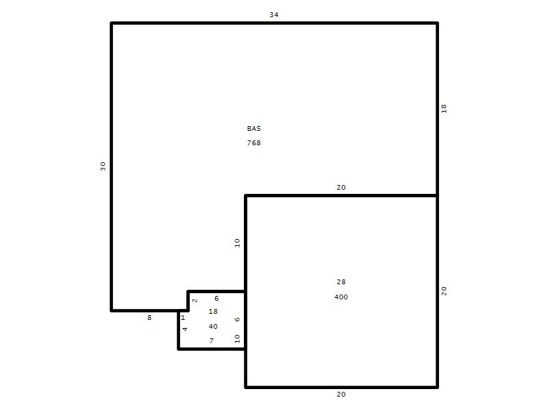
Main Body (SQFT) 768
Year Built 2013
Additions 4
Effective Year 2013
Remodeled 0
Interior Adj.
Other Features
Building Total & Improvement Details

Grade C+ 110%
Percentage Complete 100
Total Adjusted Replacement Cost New $343,492
Physical Depreciation (% Bad) 0%
Depreciated Value $302,273
Economic Depreciation (% Bad) 0%
Functional Depreciation (% Bad) 0%
Total Depreciated Value $302,273
Market Area Factor 1.00
Building Value $302,273
Misc Improvements Value $2,093
Total Improvement Value $304,366

Assessed Land Value $71,250
   
Assessed Total Value $375,616



Addition Summary 
StoryTypeCodeArea
1.00 Covered Porch 18 40
1.00 Garage 28 400
1.00 Res Frame 2Nd Flr FR02 768
1.00 Res Frm 2Nd Flr Over Garg FR02 300
 
Other Improvements 
UnitsDescriptionItemCodeYear% BadValue
10x18 DIMENSIONS Patio 2013 20 2093
 


Building Sketch
Photograph
Building Sketch Building Photo
(Click sketch for bigger image)




Copyright © 2022 Durham County, North Carolina.