Building Summary

Data last updated on: 4/1/2026     Ownership current as of: 3/27/2026     Tax Year: 2026
REID 202142

PIN # 0843-77-6616

Location Address Property Description
4212 AMBER STONE WAY GLENNSTONE/PH:03/LT#173 PL:000166-000361
   
Property Owner Owner's Mailing Address
BARCLAY ROAD HOLDINGS LLC
12521 HUSTON ST
VALLEY VILLAGE CA 91607
Parcel
Buildings
Misc Improvements
Land
Deeds
Notes
Sales
Photos
Map
Building Location Address
4212 AMBER STONE WAY
Building Description
RESFR-RES-FRM-OR-EQ
Card   of  1
Bldg Type RESIDENTIAL
Units 1
Living Area (SQFT) 2100
Number of Stories 2.00
Style CON-CONVENTIONAL
Foundation 03-CONTINOUS-SLAB
Exterior 08-VINYL/ALUMINUM
Const Type
Heating 06-HEAT-PUMP
Air Cond
Plumbing Baths (Full):   2
Baths (Half):   1
Extra Fixtures:   0
Total Plumbing Fixtures:   8 
Bedrooms 3
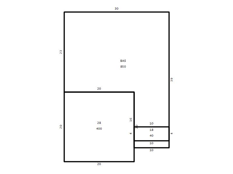
Main Body (SQFT) 850
Year Built 2014
Additions 4
Effective Year 2014
Remodeled 0
Interior Adj.
Other Features
Building Total & Improvement Details

Grade C+ 110%
Percentage Complete 100
Total Adjusted Replacement Cost New $370,932
Physical Depreciation (% Bad) 0%
Depreciated Value $330,129
Economic Depreciation (% Bad) 0%
Functional Depreciation (% Bad) 0%
Total Depreciated Value $330,129
Market Area Factor 1.00
Building Value $330,129
Misc Improvements Value $1,395
Total Improvement Value $331,524

Assessed Land Value $73,750
   
Assessed Total Value $405,274



Addition Summary 
StoryTypeCodeArea
1.00 Covered Porch 18 40
1.00 Garage 28 400
1.00 Res Frame 2Nd Flr FR02 850
1.00 Res Frm 2Nd Flr Over Garg FR02 400
 
Other Improvements 
UnitsDescriptionItemCodeYear% BadValue
10x12 DIMENSIONS Patio 2014 20 1395
 


Building Sketch
Photograph
Building Sketch Building Photo
(Click sketch for bigger image)




Copyright © 2022 Durham County, North Carolina.