Building Summary

Data last updated on: 3/31/2026     Ownership current as of: 3/26/2026     Tax Year: 2026
REID 202296

PIN # 0834-71-2055

Location Address Property Description
1106 DAMSEL WAY SWANNS MILL SF/PH:02/05/L T#55 PL:000166-000190
   
Property Owner Owner's Mailing Address
THOMPSON, DEZRA;THOMPSON, TAVARES
1106 DAMSEL WAY
DURHAM NC 27704
Parcel
Buildings
Misc Improvements
Land
Deeds
Notes
Sales
Photos
Map
Building Location Address
1106 DAMSEL WAY
Building Description
RESFR-RES-FRM-OR-EQ
Card   of  1
Bldg Type RESIDENTIAL
Units 1
Living Area (SQFT) 2415
Number of Stories 2.00
Style CON-CONVENTIONAL
Foundation 03-CONTINOUS-SLAB
Exterior 08-VINYL/ALUMINUM
Const Type
Heating 05-PACKAGE-HEAT/COOL
Air Cond
Plumbing Baths (Full):   2
Baths (Half):   1
Extra Fixtures:   0
Total Plumbing Fixtures:   8 
Bedrooms 4
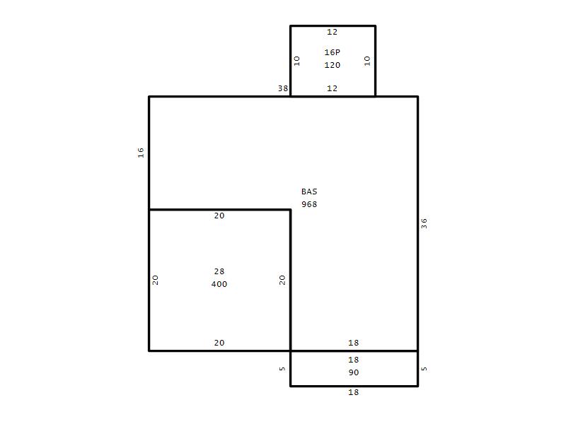
Main Body (SQFT) 968
Year Built 2006
Additions 4
Effective Year 2006
Remodeled 0
Interior Adj.
Other Features
Building Total & Improvement Details

Grade C+5 105%
Percentage Complete 100
Total Adjusted Replacement Cost New $401,079
Physical Depreciation (% Bad) 0%
Depreciated Value $344,928
Economic Depreciation (% Bad) 0%
Functional Depreciation (% Bad) 0%
Total Depreciated Value $344,928
Market Area Factor 1.00
Building Value $344,928
Misc Improvements Value
Total Improvement Value $344,928

Assessed Land Value $63,000
   
Assessed Total Value $407,928



Addition Summary 
StoryTypeCodeArea
1.00 Patio 16P 120
1.00 Covered Porch 18 90
1.00 Garage 28 400
1.00 Res Frame 2Nd Flr FR02 1447
 
Other Improvements 
 


Building Sketch
Photograph
Building Sketch Building Photo
(Click sketch for bigger image)




Copyright © 2022 Durham County, North Carolina.