Building Summary

Data last updated on: 3/31/2026     Ownership current as of: 3/26/2026     Tax Year: 2026
REID 202448

PIN # 0851-15-5345

Location Address Property Description
707 OBSIDIAN WAY STONEHILL ESTATES/PH:02/L T#064 PL:000166-000346
   
Property Owner Owner's Mailing Address
LIRANZO, ALEXEY TOMAS BLANCO;GARCIA, GRISELL MILAGRO GARCIA
707 OBSIDIAN WAY
DURHAM NC 27703
Parcel
Buildings
Misc Improvements
Land
Deeds
Notes
Sales
Photos
Map
Building Location Address
707 OBSIDIAN WAY
Building Description
RESFR-RES-FRM-OR-EQ
Card   of  1
Bldg Type RESIDENTIAL
Units 1
Living Area (SQFT) 1427
Number of Stories 2.00
Style CON-CONVENTIONAL
Foundation 03-CONTINOUS-SLAB
Exterior 08-VINYL/ALUMINUM
Const Type
Heating 05-PACKAGE-HEAT/COOL
Air Cond
Plumbing Baths (Full):   2
Baths (Half):   0
Extra Fixtures:   0
Total Plumbing Fixtures:   6 
Bedrooms 3
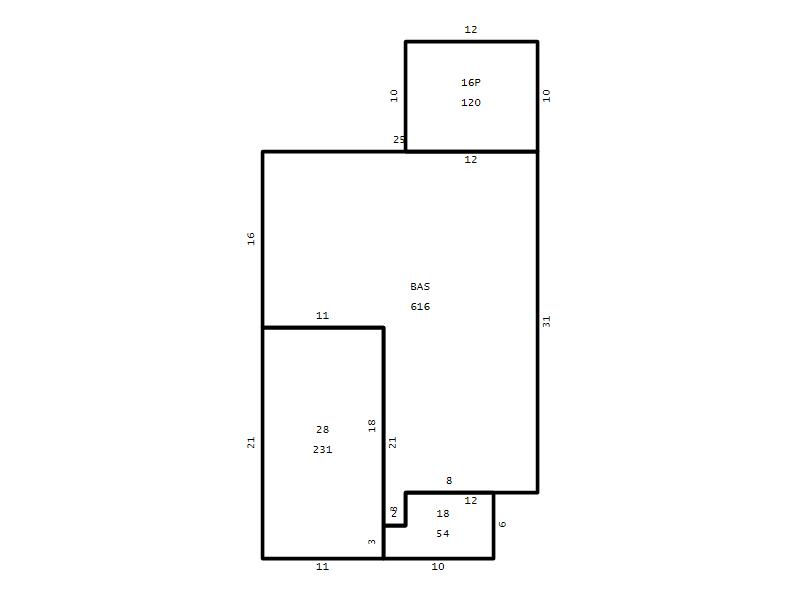
Main Body (SQFT) 616
Year Built 2006
Additions 5
Effective Year 2006
Remodeled 0
Interior Adj.
Other Features
Building Total & Improvement Details

Grade C+10 110%
Percentage Complete 100
Total Adjusted Replacement Cost New $287,953
Physical Depreciation (% Bad) 0%
Depreciated Value $233,242
Economic Depreciation (% Bad) 0%
Functional Depreciation (% Bad) 0%
Total Depreciated Value $233,242
Market Area Factor 1.00
Building Value $233,242
Misc Improvements Value
Total Improvement Value $233,242

Assessed Land Value $109,800
   
Assessed Total Value $343,042



Addition Summary 
StoryTypeCodeArea
1.00 Covered Porch 18 54
1.00 Garage 28 231
1.00 Patio 16P 120
1.00 Res Frm 2Nd Flr Over Garg FR02 187
1.00 Res Frame 2Nd Flr FR02 624
 
Other Improvements 
 


Building Sketch
Photograph
Building Sketch Building Photo
(Click sketch for bigger image)




Copyright © 2022 Durham County, North Carolina.