Building Summary

Data last updated on: 3/31/2026     Ownership current as of: 3/26/2026     Tax Year: 2026
REID 202689

PIN # 0841-92-0093

Location Address Property Description
506 FARM HOUSE LN GANYARD FARM/LT#048 PL:000167-000154
   
Property Owner Owner's Mailing Address
ESPINOSA-TELLO, EMMANUEL
506 FARM HOUSE LN
DURHAM NC 27703
Parcel
Buildings
Misc Improvements
Land
Deeds
Notes
Sales
Photos
Map
Building Location Address
506 FARM HOUSE LN
Building Description
RESFR-RES-FRM-OR-EQ
Card   of  1
Bldg Type RESIDENTIAL
Units 1
Living Area (SQFT) 1989
Number of Stories 2.00
Style CON-CONVENTIONAL
Foundation 03-CONTINOUS-SLAB
Exterior 08-VINYL/ALUMINUM
Const Type
Heating 05-PACKAGE-HEAT/COOL
Air Cond
Plumbing Baths (Full):   2
Baths (Half):   1
Extra Fixtures:   0
Total Plumbing Fixtures:   8 
Bedrooms 3
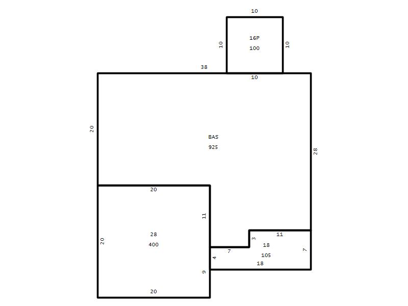
Main Body (SQFT) 925
Year Built 2009
Additions 5
Effective Year 2009
Remodeled 0
Interior Adj.
Other Features
Building Total & Improvement Details

Grade B-10 110%
Percentage Complete 100
Total Adjusted Replacement Cost New $373,967
Physical Depreciation (% Bad) 0%
Depreciated Value $332,831
Economic Depreciation (% Bad) 0%
Functional Depreciation (% Bad) 0%
Total Depreciated Value $332,831
Market Area Factor 1.00
Building Value $332,831
Misc Improvements Value
Total Improvement Value $332,831

Assessed Land Value $50,400
   
Assessed Total Value $383,231



Addition Summary 
StoryTypeCodeArea
1.00 Patio 16P 100
1.00 Covered Porch 18 105
1.00 Garage 28 400
1.00 Res Frame 2Nd Flr FR02 904
1.00 Res Frm 2Nd Flr Over Garg FR02 160
 
Other Improvements 
 


Building Sketch
Photograph
Building Sketch Building Photo
(Click sketch for bigger image)




Copyright © 2022 Durham County, North Carolina.