Building Summary

Data last updated on: 3/31/2026     Ownership current as of: 3/26/2026     Tax Year: 2026
REID 202702

PIN # 0841-92-0641

Location Address Property Description
504 GANYARD FARM WAY GANYARD FARM/LT#074 PL:000167-000154
   
Property Owner Owner's Mailing Address
BROOKS, HAROLD JEROME
504 GANYARD FARM WAY
DURHAM NC 27703
Parcel
Buildings
Misc Improvements
Land
Deeds
Notes
Sales
Photos
Map
Building Location Address
504 GANYARD FARM WAY
Building Description
RESFR-RES-FRM-OR-EQ
Card   of  1
Bldg Type RESIDENTIAL
Units 1
Living Area (SQFT) 2618
Number of Stories 2.00
Style CON-CONVENTIONAL
Foundation 03-CONTINOUS-SLAB
Exterior 08-VINYL/ALUMINUM
Const Type
Heating 05-PACKAGE-HEAT/COOL
Air Cond
Plumbing Baths (Full):   2
Baths (Half):   1
Extra Fixtures:   0
Total Plumbing Fixtures:   8 
Bedrooms 5
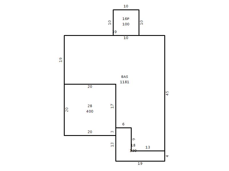
Main Body (SQFT) 1181
Year Built 2009
Additions 5
Effective Year 2009
Remodeled 0
Interior Adj.
Other Features
Building Total & Improvement Details

Grade B-10 110%
Percentage Complete 100
Total Adjusted Replacement Cost New $434,822
Physical Depreciation (% Bad) 0%
Depreciated Value $365,250
Economic Depreciation (% Bad) 0%
Functional Depreciation (% Bad) 0%
Total Depreciated Value $365,250
Market Area Factor 1.00
Building Value $365,250
Misc Improvements Value
Total Improvement Value $365,250

Assessed Land Value $52,650
   
Assessed Total Value $417,900



Addition Summary 
StoryTypeCodeArea
1.00 Patio 16P 100
1.00 Covered Porch 18 130
1.00 Garage 28 400
1.00 Res Frm 2Nd Flr Over Garg FR02 373
1.00 Res Frame 2Nd Flr FR02 1064
 
Other Improvements 
 


Building Sketch
Photograph
Building Sketch Building Photo
(Click sketch for bigger image)




Copyright © 2022 Durham County, North Carolina.