Building Summary

Data last updated on: 3/31/2026     Ownership current as of: 3/26/2026     Tax Year: 2026
REID 202735

PIN # 0841-82-1730

Location Address Property Description
316 GANYARD FARM WAY GANYARD FARM/LT#017 PL:000167-000163
   
Property Owner Owner's Mailing Address
SUNNY REAL ESTATE LLC
2608 ERWIN RD STE 148 PMB 370
DURHAM NC 27705
Parcel
Buildings
Misc Improvements
Land
Deeds
Notes
Sales
Photos
Map
Building Location Address
316 GANYARD FARM WAY
Building Description
RESFR-RES-FRM-OR-EQ
Card   of  1
Bldg Type RESIDENTIAL
Units 1
Living Area (SQFT) 2598
Number of Stories 2.00
Style CON-CONVENTIONAL
Foundation 03-CONTINOUS-SLAB
Exterior 08-VINYL/ALUMINUM
Const Type
Heating 05-PACKAGE-HEAT/COOL
Air Cond
Plumbing Baths (Full):   2
Baths (Half):   1
Extra Fixtures:   0
Total Plumbing Fixtures:   8 
Bedrooms 4
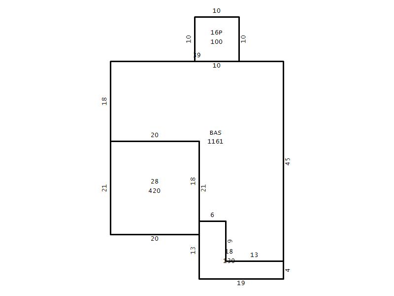
Main Body (SQFT) 1161
Year Built 2006
Additions 5
Effective Year 2006
Remodeled 0
Interior Adj.
Other Features
Building Total & Improvement Details

Grade B-10 110%
Percentage Complete 100
Total Adjusted Replacement Cost New $440,545
Physical Depreciation (% Bad) 0%
Depreciated Value $356,841
Economic Depreciation (% Bad) 0%
Functional Depreciation (% Bad) 0%
Total Depreciated Value $356,841
Market Area Factor 1.00
Building Value $356,841
Misc Improvements Value
Total Improvement Value $356,841

Assessed Land Value $52,200
   
Assessed Total Value $409,041



Addition Summary 
StoryTypeCodeArea
1.00 Patio 16P 100
1.00 Covered Porch 18 130
1.00 Garage 28 420
1.00 Res Frame 2Nd Flr FR02 1044
1.00 Res Frm 2Nd Flr Over Garg FR02 393
 
Other Improvements 
 


Building Sketch
Photograph
Building Sketch Building Photo
(Click sketch for bigger image)




Copyright © 2022 Durham County, North Carolina.