Building Summary

Data last updated on: 3/31/2026     Ownership current as of: 3/26/2026     Tax Year: 2026
REID 202760

PIN # 0841-82-3585

Location Address Property Description
401 GANYARD FARM WAY GANYARD FARM/LT#109 PL:000167-000163
   
Property Owner Owner's Mailing Address
BISWAS, CHAYAN;CHOWDHURY, USHASHI
5015 VALPEY PARK AVE
FREMONT CA 94538
Parcel
Buildings
Misc Improvements
Land
Deeds
Notes
Sales
Photos
Map
Building Location Address
401 GANYARD FARM WAY
Building Description
RESFR-RES-FRM-OR-EQ
Card   of  1
Bldg Type RESIDENTIAL
Units 1
Living Area (SQFT) 2078
Number of Stories 2.00
Style CON-CONVENTIONAL
Foundation 03-CONTINOUS-SLAB
Exterior 08-VINYL/ALUMINUM
Const Type
Heating 05-PACKAGE-HEAT/COOL
Air Cond
Plumbing Baths (Full):   2
Baths (Half):   1
Extra Fixtures:   0
Total Plumbing Fixtures:   8 
Bedrooms 3
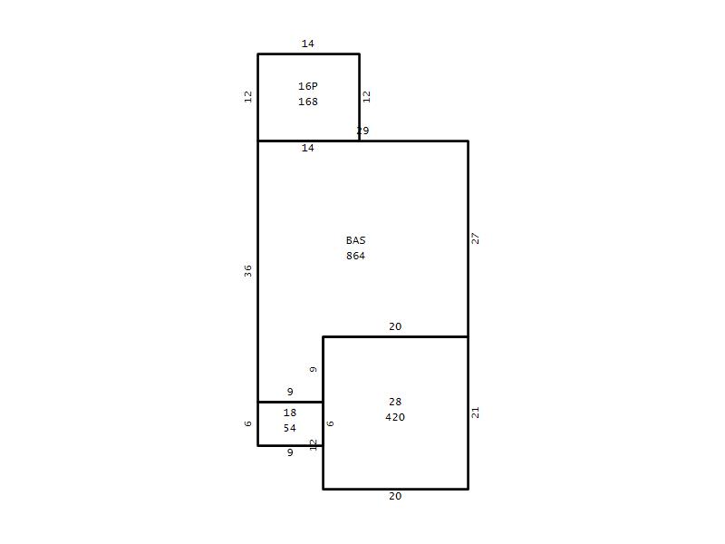
Main Body (SQFT) 864
Year Built 2006
Additions 5
Effective Year 2006
Remodeled 0
Interior Adj.
Other Features
Building Total & Improvement Details

Grade B-10 110%
Percentage Complete 100
Total Adjusted Replacement Cost New $384,341
Physical Depreciation (% Bad) 0%
Depreciated Value $311,316
Economic Depreciation (% Bad) 0%
Functional Depreciation (% Bad) 0%
Total Depreciated Value $311,316
Market Area Factor 1.00
Building Value $311,316
Misc Improvements Value
Total Improvement Value $311,316

Assessed Land Value $51,300
   
Assessed Total Value $362,616



Addition Summary 
StoryTypeCodeArea
1.00 Patio 16P 168
1.00 Covered Porch 18 54
1.00 Garage 28 420
1.00 Res Frame 2Nd Flr FR02 874
1.00 Res Frm 2Nd Flr Over Garg FR02 340
 
Other Improvements 
 


Building Sketch
Photograph
Building Sketch Building Photo
(Click sketch for bigger image)




Copyright © 2022 Durham County, North Carolina.