Building Summary

Data last updated on: 4/2/2026     Ownership current as of: 3/30/2026     Tax Year: 2026
REID 202877

PIN # 0840-79-4122

Location Address Property Description
909 REEDY WAY LYNN HOLLOW 2/PH:02/LT#13 3 PL:000167-000322
   
Property Owner Owner's Mailing Address
HALL, SIERRA D
909 REEDY WAY
DURHAM NC 27703
Parcel
Buildings
Misc Improvements
Land
Deeds
Notes
Sales
Photos
Map
Building Location Address
909 REEDY WAY
Building Description
RESFR-RES-FRM-OR-EQ
Card   of  1
Bldg Type RESIDENTIAL
Units 1
Living Area (SQFT) 1925
Number of Stories 2.00
Style CON-CONVENTIONAL
Foundation 03-CONTINOUS-SLAB
Exterior 08-VINYL/ALUMINUM
Const Type
Heating 05-PACKAGE-HEAT/COOL
Air Cond
Plumbing Baths (Full):   2
Baths (Half):   1
Extra Fixtures:   0
Total Plumbing Fixtures:   8 
Bedrooms 3
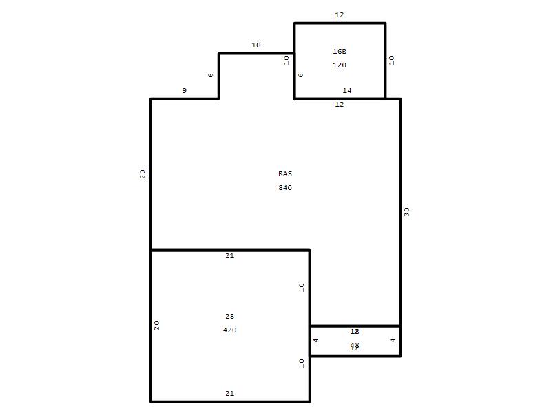
Main Body (SQFT) 840
Year Built 2007
Additions 5
Effective Year 2007
Remodeled 0
Interior Adj.
Other Features
Building Total & Improvement Details

Grade C+5 105%
Percentage Complete 100
Total Adjusted Replacement Cost New $347,061
Physical Depreciation (% Bad) 0%
Depreciated Value $284,590
Economic Depreciation (% Bad) 0%
Functional Depreciation (% Bad) 0%
Total Depreciated Value $284,590
Market Area Factor 1.00
Building Value $284,590
Misc Improvements Value
Total Improvement Value $284,590

Assessed Land Value $77,000
   
Assessed Total Value $361,590



Addition Summary 
StoryTypeCodeArea
1.00 Concrete Slab 16B 120
1.00 Covered Porch 18 48
1.00 Garage 28 420
1.00 Res Frame 2Nd Flr FR02 780
1.00 Res Frm 2Nd Flr Over Garg FR02 305
 
Other Improvements 
 


Building Sketch
Photograph
Building Sketch Building Photo
(Click sketch for bigger image)




Copyright © 2022 Durham County, North Carolina.