Building Summary

Data last updated on: 4/2/2026     Ownership current as of: 3/30/2026     Tax Year: 2026
REID 203600

PIN # 0852-44-1026

Location Address Property Description
5 BENT BRANCH CT CARDINAL LAKE/PH:02 07 13 /LT#139 PL:000167-000340
   
Property Owner Owner's Mailing Address
LITTLE, BENJAMIN MICHAEL;LITTLE, HAYLEY MEIER
5 BENT BRANCH CT
DURHAM NC 27704
Parcel
Buildings
Misc Improvements
Land
Deeds
Notes
Sales
Photos
Map
Building Location Address
5 BENT BRANCH CT
Building Description
RESFR-RES-FRM-OR-EQ
Card   of  1
Bldg Type RESIDENTIAL
Units 1
Living Area (SQFT) 2400
Number of Stories 2.00
Style CON-CONVENTIONAL
Foundation 04-P-FOOTING/CRWL-SP
Exterior 08-VINYL/ALUMINUM
Const Type
Heating 05-PACKAGE-HEAT/COOL
Air Cond
Plumbing Baths (Full):   2
Baths (Half):   1
Extra Fixtures:   0
Total Plumbing Fixtures:   8 
Bedrooms 4
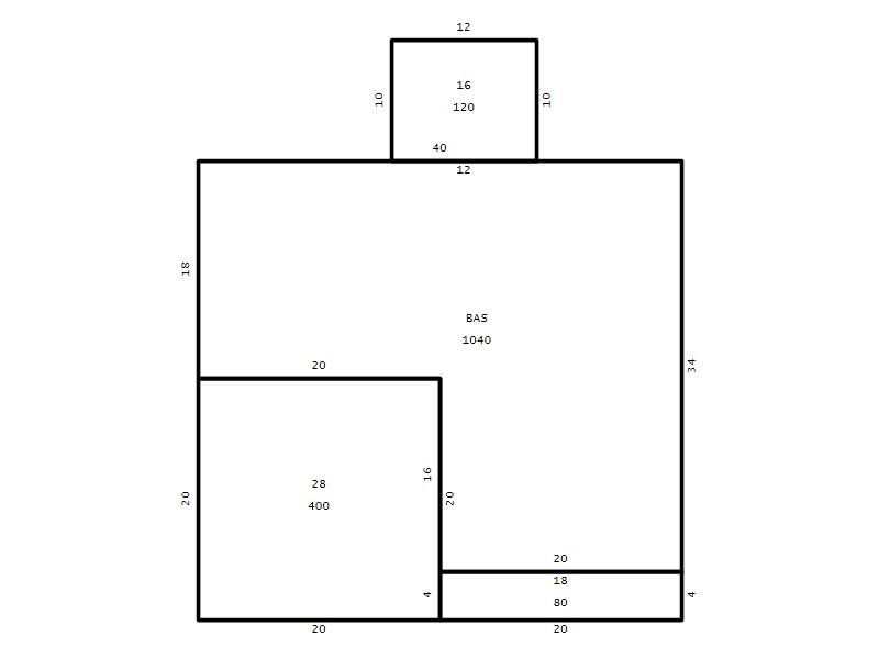
Main Body (SQFT) 1040
Year Built 2006
Additions 5
Effective Year 2006
Remodeled 0
Interior Adj.
Other Features
Building Total & Improvement Details

Grade C+ 110%
Percentage Complete 100
Total Adjusted Replacement Cost New $432,010
Physical Depreciation (% Bad) 0%
Depreciated Value $349,928
Economic Depreciation (% Bad) 0%
Functional Depreciation (% Bad) 0%
Total Depreciated Value $349,928
Market Area Factor 1.00
Building Value $349,928
Misc Improvements Value
Total Improvement Value $349,928

Assessed Land Value $75,625
   
Assessed Total Value $425,553



Addition Summary 
StoryTypeCodeArea
1.00 Frame Deck 16 120
1.00 Covered Porch 18 80
1.00 Garage 28 400
1.00 Res Frame 2Nd Flr FR02 320
1.00 Res Frm 2Nd Flr Over Garg FR02 1040
 
Other Improvements 
 


Building Sketch
Photograph
Building Sketch Building Photo
(Click sketch for bigger image)




Copyright © 2022 Durham County, North Carolina.