Building Summary

Data last updated on: 4/2/2026     Ownership current as of: 3/30/2026     Tax Year: 2026
REID 203639

PIN # 0852-33-4986

Location Address Property Description
1717 MEDALLION DR CARDINAL LAKE/PH:02 07 13 /LT#173 PL:000167-000343
   
Property Owner Owner's Mailing Address
HAVEN, RAUN COLTEN ADAM
1717 MEDALLION DR
DURHAM NC 27704
Parcel
Buildings
Misc Improvements
Land
Deeds
Notes
Sales
Photos
Map
Building Location Address
1717 MEDALLION DR
Building Description
RESFR-RES-FRM-OR-EQ
Card   of  1
Bldg Type RESIDENTIAL
Units 1
Living Area (SQFT) 1540
Number of Stories 2.00
Style CON-CONVENTIONAL
Foundation 03-CONTINOUS-SLAB
Exterior 08-VINYL/ALUMINUM
Const Type
Heating 05-PACKAGE-HEAT/COOL
Air Cond
Plumbing Baths (Full):   2
Baths (Half):   1
Extra Fixtures:   0
Total Plumbing Fixtures:   8 
Bedrooms 3
Main Body (SQFT) 840
Year Built 2005
Additions 5
Effective Year 2005
Remodeled 0
Interior Adj.
Other Features
Building Total & Improvement Details

Grade C+ 110%
Percentage Complete 100
Total Adjusted Replacement Cost New $310,836
Physical Depreciation (% Bad) 0%
Depreciated Value $251,777
Economic Depreciation (% Bad) 0%
Functional Depreciation (% Bad) 0%
Total Depreciated Value $251,777
Market Area Factor 1.00
Building Value $251,777
Misc Improvements Value
Total Improvement Value $251,777

Assessed Land Value $80,625
   
Assessed Total Value $332,402



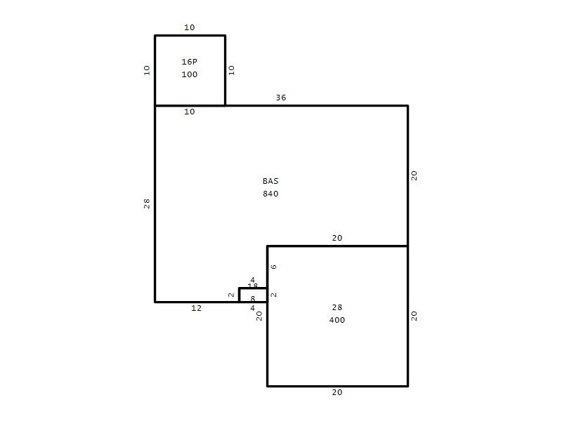
Addition Summary 
StoryTypeCodeArea
1.00 Patio 16P 100
1.00 Covered Porch 18 8
1.00 Garage 28 400
1.00 Res Frame 2Nd Flr FR02 400
1.00 Res Frm 2Nd Flr Over Garg FR02 300
 
Other Improvements 
 


Building Sketch
Photograph
Building Sketch Building Photo
(Click sketch for bigger image)




Copyright © 2022 Durham County, North Carolina.