Building Summary

Data last updated on: 3/13/2026     Ownership current as of: 3/9/2026     Tax Year: 2026
REID 203681

PIN # 0831-45-6762

Location Address Property Description
604 EASTWAY AVE BARNES AVE/PH:01/LT#19 PL:000168-000121
   
Property Owner Owner's Mailing Address
OPENDOOR PROPERTY TRUST I
1295 W WASHINGTON ST STE 115
TEMPE AZ 85288
Parcel
Buildings
Misc Improvements
Land
Deeds
Notes
Sales
Photos
Map
Building Location Address
604 EASTWAY AVE
Building Description
RESFR-RES-FRM-OR-EQ
Card   of  1
Bldg Type RESIDENTIAL
Units 1
Living Area (SQFT) 1416
Number of Stories 2.00
Style CON-CONVENTIONAL
Foundation 04-P-FOOTING/CRWL-SP
Exterior 09-HARD-B/CEMENTBRD
Const Type
Heating 05-PACKAGE-HEAT/COOL
Air Cond
Plumbing Baths (Full):   2
Baths (Half):   1
Extra Fixtures:   0
Total Plumbing Fixtures:   8 
Bedrooms 3
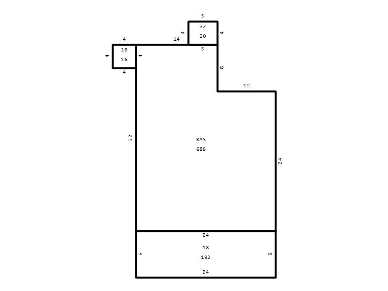
Main Body (SQFT) 688
Year Built 2008
Additions 4
Effective Year 2008
Remodeled 0
Interior Adj.
Other Features
Building Total & Improvement Details

Grade B- 115%
Percentage Complete 100
Total Adjusted Replacement Cost New $297,603
Physical Depreciation (% Bad) 0%
Depreciated Value $247,010
Economic Depreciation (% Bad) 0%
Functional Depreciation (% Bad) 0%
Total Depreciated Value $247,010
Market Area Factor 1.00
Building Value $247,010
Misc Improvements Value
Total Improvement Value $247,010

Assessed Land Value $99,900
   
Assessed Total Value $346,910



Addition Summary 
StoryTypeCodeArea
1.00 Frame Deck 16 16
1.00 Covered Porch 18 192
1.00 Storage Utility 32 20
1.00 Res Frame 2Nd Flr FR02 728
 
Other Improvements 
 


Building Sketch
Photograph
Building Sketch Building Photo
(Click sketch for bigger image)




Copyright © 2022 Durham County, North Carolina.