Building Summary

Data last updated on: 4/2/2026     Ownership current as of: 3/30/2026     Tax Year: 2026
REID 203768

PIN # 0850-76-6358

Location Address Property Description
505 POPLAR ST BRIGHTWOOD TRAILS/PH:01/L T#215 PL:000169-000265
   
Property Owner Owner's Mailing Address
MEDINA, IVAN GABRIEL ROQUE;MEDINA, LAURA JANZEN
505 POPLAR ST
DURHAM NC 27703
Parcel
Buildings
Misc Improvements
Land
Deeds
Notes
Sales
Photos
Map
Building Location Address
505 POPLAR ST
Building Description
RESFR-RES-FRM-OR-EQ
Card   of  1
Bldg Type RESIDENTIAL
Units 1
Living Area (SQFT) 2440
Number of Stories 2.00
Style CON-CONVENTIONAL
Foundation 03-CONTINOUS-SLAB
Exterior 08-VINYL/ALUMINUM
Const Type
Heating 05-PACKAGE-HEAT/COOL
Air Cond
Plumbing Baths (Full):   2
Baths (Half):   1
Extra Fixtures:   0
Total Plumbing Fixtures:   8 
Bedrooms 4
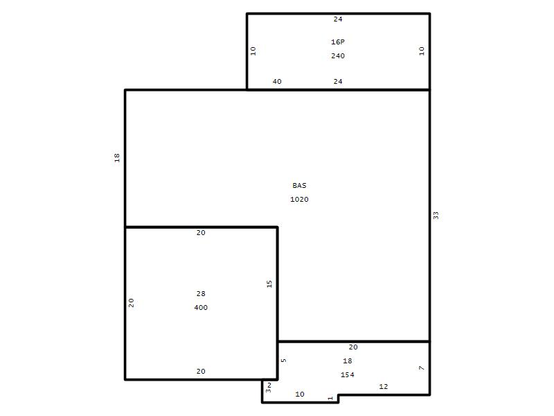
Main Body (SQFT) 1020
Year Built 2016
Additions 5
Effective Year 2016
Remodeled 0
Interior Adj.
Other Features
Building Total & Improvement Details

Grade B- 115%
Percentage Complete 100
Total Adjusted Replacement Cost New $447,858
Physical Depreciation (% Bad) 0%
Depreciated Value $407,551
Economic Depreciation (% Bad) 0%
Functional Depreciation (% Bad) 0%
Total Depreciated Value $407,551
Market Area Factor 1.00
Building Value $407,551
Misc Improvements Value
Total Improvement Value $407,551

Assessed Land Value $101,500
   
Assessed Total Value $509,051



Addition Summary 
StoryTypeCodeArea
1.00 Patio 16P 240
1.00 Covered Porch 18 154
1.00 Garage 28 400
1.00 Res Frame 2Nd Flr FR02 1020
1.00 Res Frm 2Nd Flr Over Garg FR02 400
 
Other Improvements 
 


Building Sketch
Photograph
Building Sketch Building Photo
(Click sketch for bigger image)




Copyright © 2022 Durham County, North Carolina.