Building Summary

Data last updated on: 4/2/2026     Ownership current as of: 3/30/2026     Tax Year: 2026
REID 204186

PIN # 0860-29-7311

Location Address Property Description
204 HILLVIEW DR RAVENSTONE/PH:02/SEC:01/M AP:03/LT#124 PL:000166-000250
   
Property Owner Owner's Mailing Address
IDF1 SFR PROPCO A LLC
600 GALLERIA PARKWAY STE 300
ATLANTA GA 30339
Parcel
Buildings
Misc Improvements
Land
Deeds
Notes
Sales
Photos
Map
Building Location Address
204 HILLVIEW DR
Building Description
RESFR-RES-FRM-OR-EQ
Card   of  1
Bldg Type RESIDENTIAL
Units 1
Living Area (SQFT) 3050
Number of Stories 2.00
Style CON-CONVENTIONAL
Foundation 03-CONTINOUS-SLAB
Exterior 08-VINYL/ALUMINUM
Const Type
Heating 05-PACKAGE-HEAT/COOL
Air Cond
Plumbing Baths (Full):   2
Baths (Half):   1
Extra Fixtures:   0
Total Plumbing Fixtures:   8 
Bedrooms 5
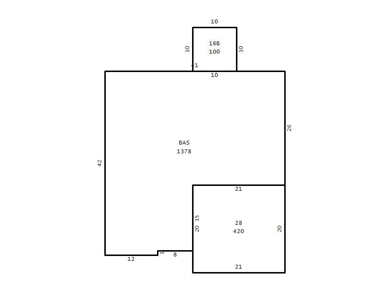
Main Body (SQFT) 1378
Year Built 2006
Additions 4
Effective Year 2006
Remodeled 0
Interior Adj.
Other Features
Building Total & Improvement Details

Grade B-10 110%
Percentage Complete 100
Total Adjusted Replacement Cost New $472,620
Physical Depreciation (% Bad) 0%
Depreciated Value $382,822
Economic Depreciation (% Bad) 0%
Functional Depreciation (% Bad) 0%
Total Depreciated Value $382,822
Market Area Factor 1.00
Building Value $382,822
Misc Improvements Value
Total Improvement Value $382,822

Assessed Land Value $107,625
   
Assessed Total Value $490,447



Addition Summary 
StoryTypeCodeArea
1.00 Concrete Slab 16B 100
1.00 Garage 28 420
1.00 Res Frame 2Nd Flr FR02 1378
1.00 Res Frm 2Nd Flr Over Garg FR02 294
 
Other Improvements 
 


Building Sketch
Photograph
Building Sketch Building Photo
(Click sketch for bigger image)




Copyright © 2022 Durham County, North Carolina.