Building Summary

Data last updated on: 4/2/2026     Ownership current as of: 3/30/2026     Tax Year: 2026
REID 204213

PIN # 0860-27-0926

Location Address Property Description
2 RED SAGE CT RAVENSTONE/PH:02/SEC:01/M AP:04/LT#228 PL:000166-000235
   
Property Owner Owner's Mailing Address
FKH SFR Q LP
600 GALLERIA PKWY STE 300
ATLANTA GA 30339
Parcel
Buildings
Misc Improvements
Land
Deeds
Notes
Sales
Photos
Map
Building Location Address
2 RED SAGE CT
Building Description
RESFR-RES-FRM-OR-EQ
Card   of  1
Bldg Type RESIDENTIAL
Units 1
Living Area (SQFT) 3066
Number of Stories 2.00
Style CON-CONVENTIONAL
Foundation 03-CONTINOUS-SLAB
Exterior 08-VINYL/ALUMINUM
Const Type
Heating 05-PACKAGE-HEAT/COOL
Air Cond
Plumbing Baths (Full):   2
Baths (Half):   1
Extra Fixtures:   0
Total Plumbing Fixtures:   8 
Bedrooms 3
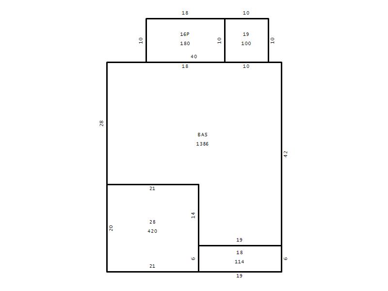
Main Body (SQFT) 1386
Year Built 2006
Additions 6
Effective Year 2006
Remodeled 0
Interior Adj.
Other Features
Building Total & Improvement Details

Grade B-10 110%
Percentage Complete 100
Total Adjusted Replacement Cost New $489,395
Physical Depreciation (% Bad) 0%
Depreciated Value $396,410
Economic Depreciation (% Bad) 0%
Functional Depreciation (% Bad) 0%
Total Depreciated Value $396,410
Market Area Factor 1.00
Building Value $396,410
Misc Improvements Value
Total Improvement Value $396,410

Assessed Land Value $108,500
   
Assessed Total Value $504,910



Addition Summary 
StoryTypeCodeArea
1.00 Patio 16P 180
1.00 Screen Porch 19 100
1.00 Garage 28 420
1.00 Covered Porch 18 114
1.00 Res Frame 2Nd Flr FR02 1386
1.00 Res Frm 2Nd Flr Over Garg FR02 294
 
Other Improvements 
 


Building Sketch
Photograph
Building Sketch Building Photo
(Click sketch for bigger image)




Copyright © 2022 Durham County, North Carolina.