Building Summary

Data last updated on: 4/3/2026     Ownership current as of: 3/30/2026     Tax Year: 2026
REID 110494

PIN # 0831-17-5698

Location Address Property Description
506 OAKWOOD AVE PROP-PRATT W MANGUM/LT#45 CLEVELAND-HOLLOWAY/HD PL:00005A-000003
   
Property Owner Owner's Mailing Address
REPLOGLE, DOUGLAS JAMES;WASICK, JILLIAN BETH
506 OAKWOOD AVE
DURHAM NC 27701

Value subject to change, property assessment under review

Parcel
Buildings
Misc Improvements
Land
Deeds
Notes
Sales
Photos
Map
Building Location Address
506 OAKWOOD AVE
Building Description
RESFR-RES-FRM-OR-EQ
Card   of  1
Bldg Type RESIDENTIAL
Units 1
Living Area (SQFT) 2544
Number of Stories 2.00
Style CON-CONVENTIONAL
Foundation 04-P-FOOTING/CRWL-SP
Exterior 01-WOOD-PANEL
Const Type
Heating 05-PACKAGE-HEAT/COOL
Air Cond
Plumbing Baths (Full):   2
Baths (Half):   1
Extra Fixtures:   0
Total Plumbing Fixtures:   8 
Bedrooms 4
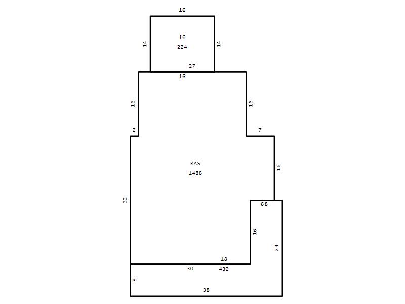
Main Body (SQFT) 1488
Year Built 1925
Additions 3
Effective Year 1925
Remodeled 0
Interior Adj.
Other Features
Building Total & Improvement Details

Grade A-10 155%
Percentage Complete 100
Total Adjusted Replacement Cost New
Physical Depreciation (% Bad) 0%
Depreciated Value
Economic Depreciation (% Bad) 0%
Functional Depreciation (% Bad) 0%
Total Depreciated Value
Market Area Factor 1.00
Building Value
Misc Improvements Value
Total Improvement Value

Assessed Land Value
   
Assessed Total Value



Addition Summary 
StoryTypeCodeArea
1.00 Frame Deck 16 224
1.00 Covered Porch 18 432
1.00 Res Frame 2Nd Flr FR02 1056
 
Other Improvements 
 


Building Sketch
Photograph
Building Sketch Building Photo
(Click sketch for bigger image)




Copyright © 2022 Durham County, North Carolina.