Building Summary

Data last updated on: 4/2/2026     Ownership current as of: 3/30/2026     Tax Year: 2026
REID 204446

PIN # 0850-86-2190

Location Address Property Description
611 POPLAR ST BRIGHTWOOD TRAILS/PH:03/L T#202 PL:000170-000182
   
Property Owner Owner's Mailing Address
PULLIAM, KELLY LYNN;BUCK, CHRISTOPHER D
611 POPLAR ST
DURHAM NC 27703
Parcel
Buildings
Misc Improvements
Land
Deeds
Notes
Sales
Photos
Map
Building Location Address
611 POPLAR ST
Building Description
RESFR-RES-FRM-OR-EQ
Card   of  1
Bldg Type RESIDENTIAL
Units 1
Living Area (SQFT) 2333
Number of Stories 2.00
Style CON-CONVENTIONAL
Foundation 03-CONTINOUS-SLAB
Exterior 08-VINYL/ALUMINUM
Const Type
Heating 05-PACKAGE-HEAT/COOL
Air Cond
Plumbing Baths (Full):   3
Baths (Half):   0
Extra Fixtures:   0
Total Plumbing Fixtures:   9 
Bedrooms 4
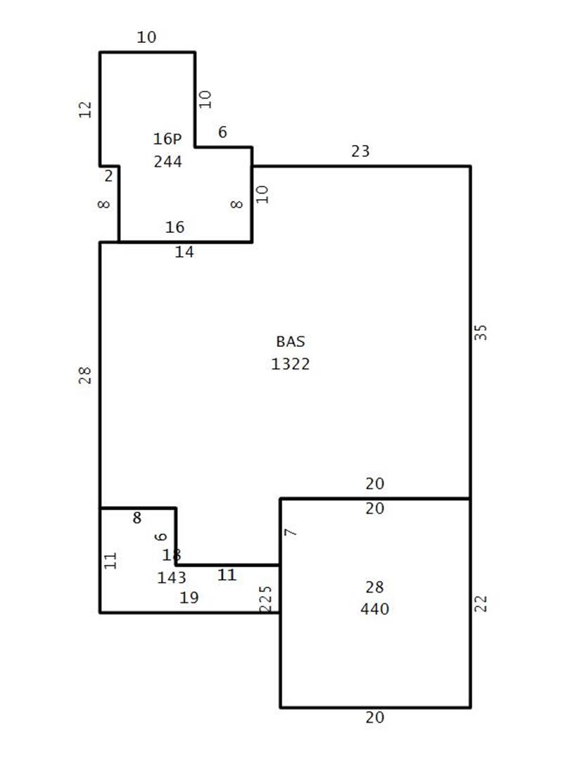
Main Body (SQFT) 1322
Year Built 2010
Additions 5
Effective Year 2010
Remodeled 0
Interior Adj.
Other Features
Building Total & Improvement Details

Grade B- 115%
Percentage Complete 100
Total Adjusted Replacement Cost New $440,450
Physical Depreciation (% Bad) 0%
Depreciated Value $374,382
Economic Depreciation (% Bad) 0%
Functional Depreciation (% Bad) 0%
Total Depreciated Value $374,382
Market Area Factor 1.00
Building Value $374,382
Misc Improvements Value
Total Improvement Value $374,382

Assessed Land Value $101,500
   
Assessed Total Value $475,882



Addition Summary 
StoryTypeCodeArea
1.00 Patio 16P 244
1.00 Covered Porch 18 143
1.00 Garage 28 440
1.00 Res Frame 2Nd Flr FR02 724
1.00 Res Frm 2Nd Flr Over Garg FR02 287
 
Other Improvements 
 


Building Sketch
Photograph
Building Sketch Building Photo
(Click sketch for bigger image)




Copyright © 2022 Durham County, North Carolina.