Building Summary

Data last updated on: 4/2/2026     Ownership current as of: 3/30/2026     Tax Year: 2026
REID 204534

PIN # 0842-47-1003

Location Address Property Description
1715 GREAT BEND DR LANDON FARMS/PH:08A/LT#02 7 PL:000166-000148
   
Property Owner Owner's Mailing Address
BAF ASSETS 2 LLC
3903 S CONGRESS AVE STE 40298
AUSTIN TX 78704
Parcel
Buildings
Misc Improvements
Land
Deeds
Notes
Sales
Photos
Map
Building Location Address
1715 GREAT BEND DR
Building Description
RESFR-RES-FRM-OR-EQ
Card   of  1
Bldg Type RESIDENTIAL
Units 1
Living Area (SQFT) 1404
Number of Stories 2.00
Style CON-CONVENTIONAL
Foundation 03-CONTINOUS-SLAB
Exterior 08-VINYL/ALUMINUM
Const Type
Heating 05-PACKAGE-HEAT/COOL
Air Cond
Plumbing Baths (Full):   2
Baths (Half):   1
Extra Fixtures:   0
Total Plumbing Fixtures:   8 
Bedrooms 3
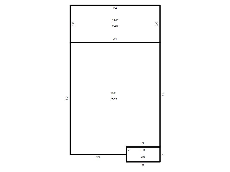
Main Body (SQFT) 702
Year Built 2008
Additions 3
Effective Year 2008
Remodeled 0
Interior Adj.
Other Features
Building Total & Improvement Details

Grade C+ 110%
Percentage Complete 100
Total Adjusted Replacement Cost New $269,921
Physical Depreciation (% Bad) 0%
Depreciated Value $224,034
Economic Depreciation (% Bad) 0%
Functional Depreciation (% Bad) 0%
Total Depreciated Value $224,034
Market Area Factor 1.00
Building Value $224,034
Misc Improvements Value
Total Improvement Value $224,034

Assessed Land Value $72,500
   
Assessed Total Value $296,534



Addition Summary 
StoryTypeCodeArea
1.00 Patio 16P 240
1.00 Covered Porch 18 36
1.00 Res Frame 2Nd Flr FR02 702
 
Other Improvements 
 


Building Sketch
Photograph
Building Sketch Building Photo
(Click sketch for bigger image)




Copyright © 2022 Durham County, North Carolina.