Building Summary

Data last updated on: 1/13/2026     Ownership current as of: 12/23/2025     Tax Year: 2026
REID 110539

PIN # 0831-17-0575

Location Address Property Description
501 N QUEEN ST PROP-PRATT W MANGUM/LT#70 PT PL:00005A-000003
   
Property Owner Owner's Mailing Address
SPIZZIRRI, ANTHONY;SOLBERG, SARAH
611 N QUEEN ST
DURHAM NC 27701
Parcel
Buildings
Misc Improvements
Land
Deeds
Notes
Sales
Photos
Map
Building Location Address
501 N QUEEN ST
Building Description
RESFR-RES-FRM-OR-EQ
Card   of  1
Bldg Type RESIDENTIAL
Units 1
Living Area (SQFT) 2113
Number of Stories 2.00
Style CAP-CAPE-COD
Foundation 04-P-FOOTING/CRWL-SP
Exterior 01-WOOD-PANEL
Const Type
Heating 06-HEAT-PUMP
Air Cond
Plumbing Baths (Full):   2
Baths (Half):   1
Extra Fixtures:   0
Total Plumbing Fixtures:   8 
Bedrooms 3
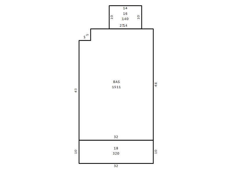
Main Body (SQFT) 1511
Year Built 1920
Additions 4
Effective Year 1920
Remodeled 0
Interior Adj.
Other Features
Building Total & Improvement Details

Grade A 165%
Percentage Complete 100
Total Adjusted Replacement Cost New $580,709
Physical Depreciation (% Bad) 0%
Depreciated Value $551,674
Economic Depreciation (% Bad) 0%
Functional Depreciation (% Bad) 0%
Total Depreciated Value $551,674
Market Area Factor 1.00
Building Value $551,674
Misc Improvements Value
Total Improvement Value $551,674

Assessed Land Value $199,500
   
Assessed Total Value $751,174



Addition Summary 
StoryTypeCodeArea
1.00 Frame Deck 16 140
1.00 Covered Porch 18 320
1.00 Res Frame 2Nd Flr FR02 602
1.00 Frame Deck 16 32
 
Other Improvements 
 


Building Sketch
Photograph
Building Sketch Building Photo
(Click sketch for bigger image)




Copyright © 2022 Durham County, North Carolina.