Building Summary

Data last updated on: 3/31/2026     Ownership current as of: 3/26/2026     Tax Year: 2026
REID 205058

PIN # 0834-61-5728

Location Address Property Description
4803 MILLER DR SWANNS MILL SF/PH:06/LT#1 20 PL:000171-000027
   
Property Owner Owner's Mailing Address
PEREZ, ANEURY;TAVERA, ANNY GISELLE CASTILLO;CASTILLO, AURY MARIE DURAN
4803 MILLER DR
DURHAM NC 27704
Parcel
Buildings
Misc Improvements
Land
Deeds
Notes
Sales
Photos
Map
Building Location Address
4803 MILLER DR
Building Description
RESFR-RES-FRM-OR-EQ
Card   of  1
Bldg Type RESIDENTIAL
Units 1
Living Area (SQFT) 1919
Number of Stories 2.00
Style CON-CONVENTIONAL
Foundation 03-CONTINOUS-SLAB
Exterior 08-VINYL/ALUMINUM
Const Type
Heating 05-PACKAGE-HEAT/COOL
Air Cond
Plumbing Baths (Full):   2
Baths (Half):   1
Extra Fixtures:   0
Total Plumbing Fixtures:   8 
Bedrooms 3
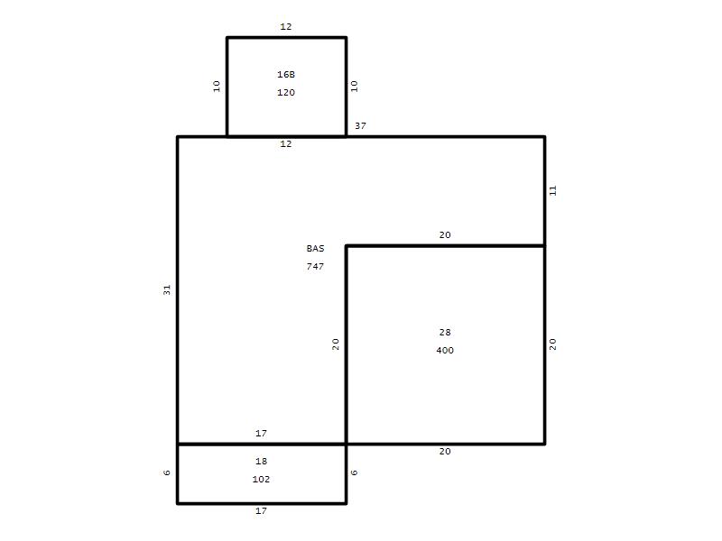
Main Body (SQFT) 747
Year Built 2007
Additions 5
Effective Year 2007
Remodeled 0
Interior Adj.
Other Features
Building Total & Improvement Details

Grade C+5 105%
Percentage Complete 100
Total Adjusted Replacement Cost New $347,877
Physical Depreciation (% Bad) 0%
Depreciated Value $302,653
Economic Depreciation (% Bad) 0%
Functional Depreciation (% Bad) 0%
Total Depreciated Value $302,653
Market Area Factor 1.00
Building Value $302,653
Misc Improvements Value
Total Improvement Value $302,653

Assessed Land Value $57,000
   
Assessed Total Value $359,653



Addition Summary 
StoryTypeCodeArea
1.00 Concrete Slab 16B 120
1.00 Covered Porch 18 102
1.00 Garage 28 400
1.00 Res Frame 2Nd Flr FR02 747
1.00 Res Frm 2Nd Flr Over Garg FR02 425
 
Other Improvements 
 


Building Sketch
Photograph
Building Sketch Building Photo
(Click sketch for bigger image)




Copyright © 2022 Durham County, North Carolina.