Building Summary

Data last updated on: 4/2/2026     Ownership current as of: 3/30/2026     Tax Year: 2026
REID 116072

PIN # 0820-88-6257

Location Address Property Description
404 CECIL ST PROP-PAGE W W/LT#09 PL:00018B-000112
   
Property Owner Owner's Mailing Address
ALLES, JONATHAN;ALLES, VICTORIA
404 CECIL ST
DURHAM NC 27707
Parcel
Buildings
Misc Improvements
Land
Deeds
Notes
Sales
Photos
Map
Building Location Address
404 CECIL ST
Building Description
RESMS-RES-MS-OR-EQ
Card   of  1
Bldg Type RESIDENTIAL
Units 1
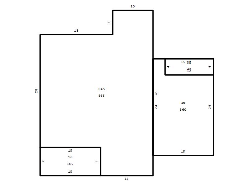
Living Area (SQFT) 935
Number of Stories 1.00
Style RAN-RANCH
Foundation 04-P-FOOTING/CRWL-SP
Exterior 02-BRICK
Const Type
Heating 05-PACKAGE-HEAT/COOL
Air Cond
Plumbing Baths (Full):   1
Baths (Half):   1
Extra Fixtures:   0
Total Plumbing Fixtures:   5 
Bedrooms 2
Main Body (SQFT) 935
Year Built 1950
Additions 4
Effective Year 1950
Remodeled 0
Interior Adj.
Other Features
Building Total & Improvement Details

Grade C 100%
Percentage Complete 100
Total Adjusted Replacement Cost New $233,357
Physical Depreciation (% Bad) 0%
Depreciated Value $151,682
Economic Depreciation (% Bad) 0%
Functional Depreciation (% Bad) 0%
Total Depreciated Value $151,682
Market Area Factor 1.00
Building Value $151,682
Misc Improvements Value
Total Improvement Value $151,682

Assessed Land Value $111,125
   
Assessed Total Value $262,807



Addition Summary 
StoryTypeCodeArea
1.00 Covered Porch 18 105
1.00 Carport 30 360
1.00 Storage Utility 32 48
1.00 Screen Porch 19 360
 
Other Improvements 
 


Building Sketch
Photograph
Building Sketch Building Photo
(Click sketch for bigger image)




Copyright © 2022 Durham County, North Carolina.